Prodej bytu 2+1 63 m², Lidická, Karlovy Vary

3 290 000 Kč G

Nemovitost nabízí

Martin Brunclík

Dobrébydlení Trading s.r.o.
Moskevská 1179/20, Karlovy Vary

Popis nemovitosti

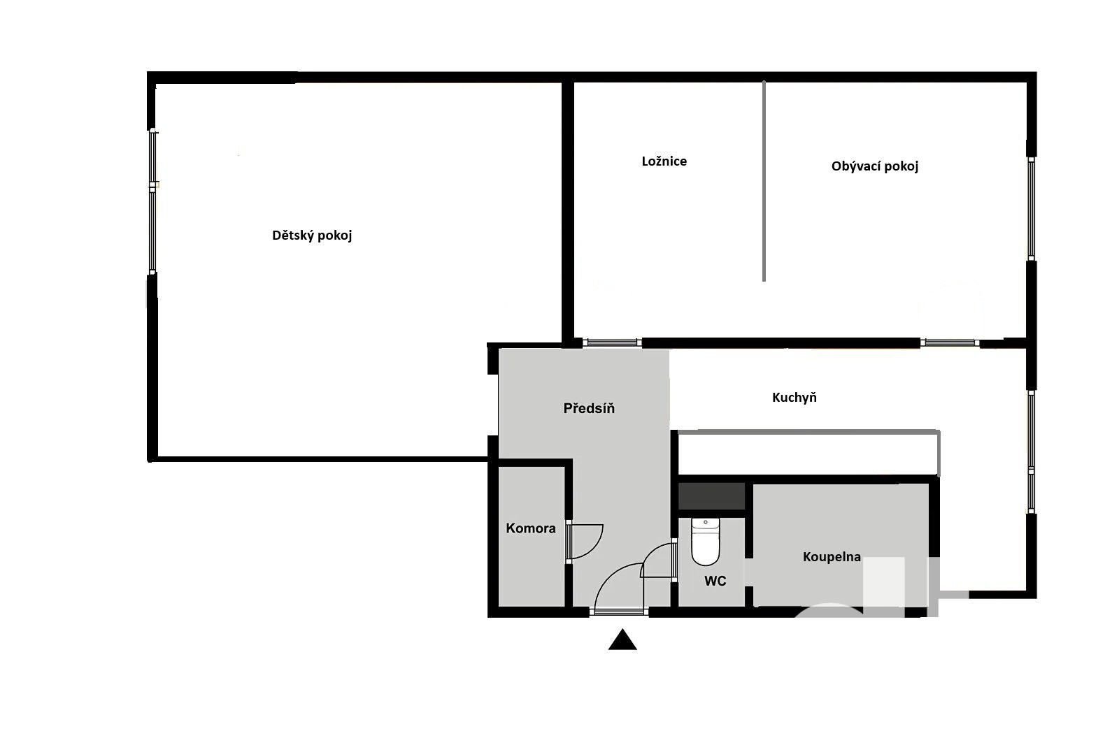
Nabízíme k prodeji byt v osobním vlastnictví s dispozicí 2+1 o celkové ploše 63 m3, který se nachází ve třetím patře revitalizovaného panelového domu s výtahem v ulici Lidická, městské části Drahovice. Byt je v původním udržovaném stavu. Přepažením jedné místnosti zde vzniklo oddělené místo pro ložnici. Vytápění a ohřev vody je zajištěno centrálně. K bytu náleží komora v mezipatře. Veškerá občanská vybavenost v docházkové vzdálenosti bytu. Bezproblémové parkování v okolí domu. Drahovice jsou oblíbenou částí Karlových Varů pro jejich blízkost centra města, zeleni a přírodě v okolí, skvělou občanskou vybaveností a klidnou atmosférou této části. Doporučujeme.

Základní údaje

Dopravní spojení
Autobus, MHD, Silnice
Elektřina
230 V
Kanalizace
Veřejná kanalizace
Zdroje vody
Veřejný vodovod
Způsoby vytápění
Ústřední - dálkové
Konstrukce
Panelová
Inženýrské sítě
Plyn
Příjezdy
Asfalt
ID nemovitosti
1661
Datum vložení
21. července 2025
Vlastnictví
soukromé
Stav nemovitosti
Dobrý
Plocha užitná
63 m²
Patro
3.
Energetická náročnost
G - Mimořádně nehospodárná

Poloha na mapě

Nemovitost nabízí

Martin Brunclík

Dobrébydlení Trading s.r.o.
Moskevská 1179/20, Karlovy Vary