Prodej bytu 2+1 52 m², Josefa Suka, Most
1 499 000 Kč
B
Popis nemovitosti
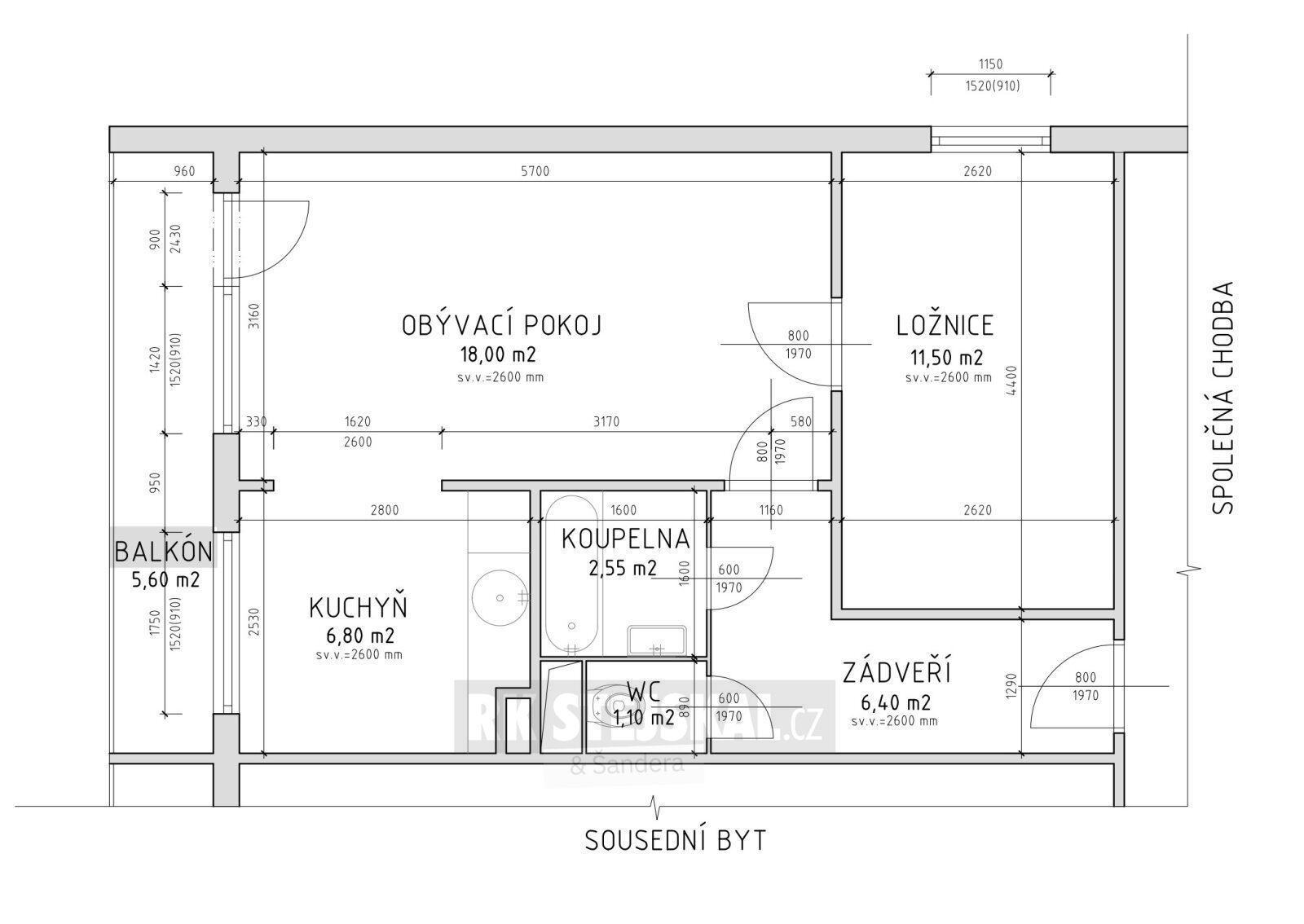
Nabízíme vám ke koupi prostorný byt dispozice 2+1 o celkové výměře 58 m² v ulici Josefa Suka ve městě Most. Byt se nachází v 10. patře bytového domu, který prošel kompletní rekonstrukcí klíčových prvků a je určen k rekonstrukci dle svým představ. Součástí jednotky je také praktický příruční sklep (cca 4 m²) na patře bytu a sklepní kóje v suterénu budovy.
Dispozice a vybavení:
Byt je v původním stavu a je ideální pro rekonstrukci dle vlastních představ, protože všechny příčky jsou nenosné a dispozici lze upravit zcela flexibilně. Po vstupu do bytu vás uvítá prostorná chodba ve tvaru L, ze které je přístup do koupelny a samostatného WC (umakartové jádro). Z chodby se dále dostanete do prostorného obývacího pokoje, který nabízí dostatek místa pro vytvoření komfortní obývací části. Dále zde najdete vstup do samostatného pokoje a zároveň do kuchyně, která je s obývákem propojena.
Z obývacího pokoje je také přístup na balkon, který poskytuje dostatek prostoru pro příjemné venkovní posezení a je vybaven sítí proti ptactvu. Momentálně jsou stěny bytu opatřeny tapetami a podlahy pokryté linem. K bytu dále náleží příruční sklep přímo na patře, ideální pro věci, které potřebujete mít po ruce, a také sklepní koje pro další skladování.
Rekonstrukce bytového domu:
Dům prošel od roku 2012 kompletní rekonstrukcí veškerých klíčových prvků- výměna oken, zateplení fasády, rekonstrukce vertikálních a vodorovných rozvodů, instalace nových výtahů a rekonstrukce střechy. Díky tomu je stavba v té nejlepší kondici, o čemž také svědčí energetická třída B.
Lokalita:
Ulice Josefa Suka v Mostě patří mezi nejvyhledávanější části města — nabízí skvělou dostupnost veškeré občanské vybavenosti: obchody, školy, služby i MHD máte téměř na dosah ruky. Zároveň zde panuje klid a sousedství je obklopené zelení. Velkou předností je nedaleký městský park Šibeník, ideální pro příjemné procházky, relaxaci nebo sportování v přírodě. Touto kombinací pohodlí městského života a klidu přírody je tato lokalita atraktivní pro rodiny i jednotlivce, kteří hledají kvalitní, bezpečné a vyvážené bydlení.
Byt svými parametry nabízí ideální prostor pro vytvoření vlastního bydlení přesně podle vašich představ a zároveň představuje výbornou investiční příležitost díky strategické poloze a možnosti flexibilní úpravy dispozice.
Pro prohlídku či více informací nás neváhejte kontaktovat.
Základní údaje
Dopravní spojení
MHD, Silnice
Kanalizace
Veřejná kanalizace
Zdroje vody
Veřejný vodovod
Způsoby vytápění
Ústřední - dálkové
Konstrukce
Panelová
Balkóny
Balkon
Druhy bytů
Klasický
Inženýrské sítě
Plyn
Parkování
Parkování na ulici
Příjezdy
Asfalt
Vytápění podrobnosti
Radiátory
ID nemovitosti
6331
Datum vložení
před 16 hodinami
Vlastnictví
soukromé
Stav nemovitosti
K rekonstrukci
Plocha obytná
58 m²
Plocha užitná
52 m²
Patro
9.
Energetická náročnost
B - Velmi úsporná
