Prodej bytu 2+1 66 m², Ve Smečkách, Praha

12 990 000 Kč E
cena uvedena včetně provize a právního servisu, včetně provize, včetně právního servisu

Nemovitost nabízí

Lukáš Kubát

Bohemian Estates International, s.r.o.
V háji 1092/15, Praha

Popis nemovitosti

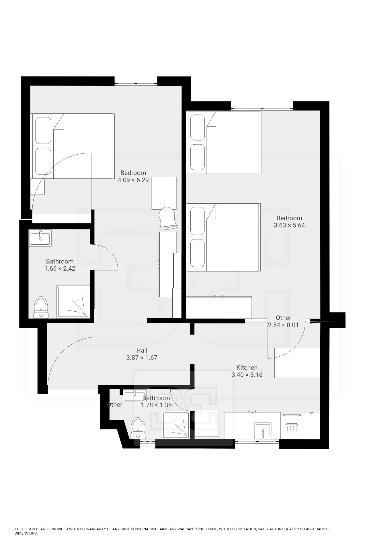
Zrekonstruovaný byt 2+1 v srdci PrahyNabízíme k prodeji nádherný, kompletně zrekonstruovaný byt o dispozici 2+1 a podlahové ploše 66 m2. Byt je orientován na východní stranu do ulice a nachází se ve 3. nadzemním podlaží udržovaného domu bez výtahu. Lokalita přímo v centru Prahy, jen pár kroků od Václavského náměstí, nabízí veškerou občanskou vybavenost – obchody, supermarkety, lékárny, kavárny a mnoho dalšího.Dispozice a vybavení: • Dispozice: 2+1 • Podlahová plocha: 66 m2 • Podlaží: 3. NP • Orientace: východByt prošel kompletní rekonstrukcí v roce 2018, a to s důrazem na moderní design, funkčnost a optimalizaci pro krátkodobé pronájmy. Všechny pokoje jsou neprůchozí, což zajišťuje vysoký komfort a soukromí.První pokoj nabízí částečně vybavenou kuchyňku, šatní skříň, manželskou postel a vlastní koupelnu se sprchovým koutem a toaletou. Druhý pokoj je vybaven šatní skříní a dvěma manželskými postelemi.Samostatná kuchyň je plně vybavena spotřebiči – myčkou, pračkou, mikrovlnnou troubou, varnou deskou, elektrickou troubou a lednicí s mrazákem. Za kuchyní se nachází druhá koupelna se sprchovým koutem a toaletou.Podlahy jsou pokryté dřevěnými parketami, které dodávají interiéru příjemnou a hřejivou atmosféru.Technické informace: • Vytápění a ohřev vody: Elektřina • Okna: dřevěná • Výtah: není k dispozici • Stav domu: udržovaný a čistý • Energetická náročnost budovy: třída EVýjimečná lokalita:Byt se nachází v atraktivní části Nového Města, jen pár minut chůze od Václavského náměstí. V docházkové vzdálenosti se nacházejí dvě stanice metra (Muzeum, Můstek) a další stanice I. P. Pavlova. Nedaleko je také tramvajová zastávka v Ječné ulici a v budoucnu se plánuje rozšíření tramvajových tratí i na Václavském náměstí.Další informace:Byt je ideální investicí pro krátkodobé pronájmy, jejichž správu Vám naše společnost může kompletně zajistit.V případě zájmu o financování Vám rádi zprostředkujeme služby našeho zkušeného hypotečního specialisty s dlouholetou praxí.V případě zájmu Vám rád pošlu odkaz na virtuální prohlídku, abyste měli úplnou představu o nabízené nemovitosti (360C prohlídka s možností orientace ve videu dle vašich představ).

Základní údaje

Dopravní spojení
Autobus, Vlak, MHD, Dálnice
Elektřina
230 V
Zdroje vody
Veřejný vodovod
Způsoby vytápění
Ústřední - elektrické
Konstrukce
Zděná
Příjezdy
Asfalt
ID nemovitosti
N08317
Datum vložení
před měsícem
Vlastnictví
soukromé
Stav nemovitosti
Bezvadný
Plocha užitná
66 m²
Patro
2.
Energetická náročnost
E - Nehospodárná

Poloha na mapě

Nemovitost nabízí

Lukáš Kubát

Bohemian Estates International, s.r.o.
V háji 1092/15, Praha