Prodej bytu 2+kk 79 m², Kunčice nad Labem

5 990 000 Kč B

Nemovitost nabízí

Hana Křemenová

QARA s.r.o.
Šafaříkova 201/17, Praha

Popis nemovitosti

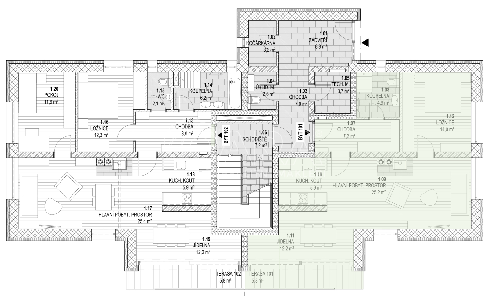
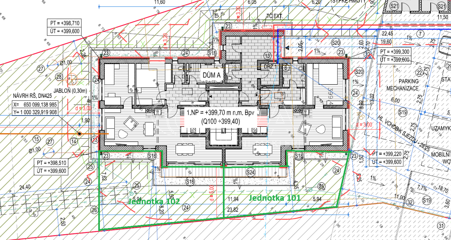
Nabízíme k prodeji moderní a útulný byt 2 + kk 73,8m2 s vlastní terasou a předzahrádkou 56m2 v novostavbě domu v obci Kunčice nad Labem. Nachází se v klidné lokalitě, pouhých 5 minut autem od Vrchlabí, a nabízí jedinečné spojení pohodlí a přírody, s blízkostí lyžařských středisek Herlíkovice a Špindlerův Mlýn, či Černý Důl nebo Janské Lázně v dojezdové vzdálenosti. Byt o celkové ploše 73,8m² (byt)+ 56m2 (předzahrádka + terasa) se nachází v přízemí domu a poskytuje dostatek prostoru pro každodenní rodinný život. Celý prostor s moderní architekturou a příjemným prosvětlením vytváří ideální prostředí pro rodinné chvíle. V bytě je příprava na kuchyňskou linku. S vybavením bytu vám rádi pomůžeme. Pro uložení sportovního či jiného vybavení má byt k dispozici prostorný sklep a parkovací místo pro vůz máte na privátním parkovišti na pozemku před domem. Jedním z největších benefitů této nemovitosti je další rozsáhlá zahrada, kde děti mohou běhat, hrát si a objevovat přírodu, zatímco rodiče mohou trávit čas a užívat si klid a pohodu. Zahrada je dostatečně prostorná pro pořádání rodinných oslav a setkání s přáteli. Dům je vytápěn moderním tepleným čerpadlem, které zajišťuje plný komfort během celého roku. Lokalita nabízí možnosti koupání v Labi, které navazuje přímo na pozemek, což je dokonalá aktivita pro letní dny. A okolí nabízí širokou škálu příležitostí pro výlety a rekreaci v přírodě. Ideální místo pro rodiny hledající bezpečné a přátelské prostředí pro své děti, či vás - sportovně laděné cyklisty, turisty nebo lyžaře. V případě zájmu o prohlídku nás neváhejte kontaktovat.

Základní údaje

Dopravní spojení
Autobus, Vlak, Silnice
Kanalizace
Vlastní ČOV
Konstrukce
Jiná
Parkování
Parkoviště
ID nemovitosti
17873
Datum vložení
včera
Vlastnictví
soukromé
Stav nemovitosti
Novostavba
Plocha pozemku
79 m²
Plocha obytná
79 m²
Plocha užitná
79 m²
Plocha zastavěná
79 m²
Energetická náročnost
B - Velmi úsporná

Poloha na mapě

Nemovitost nabízí

Hana Křemenová

QARA s.r.o.
Šafaříkova 201/17, Praha