Prodej bytu 2+kk 50 m², Aloise Rašína, Olomouc
5 890 000 Kč
A
cena je včetně provize, právního servisu a DPH
Popis nemovitosti
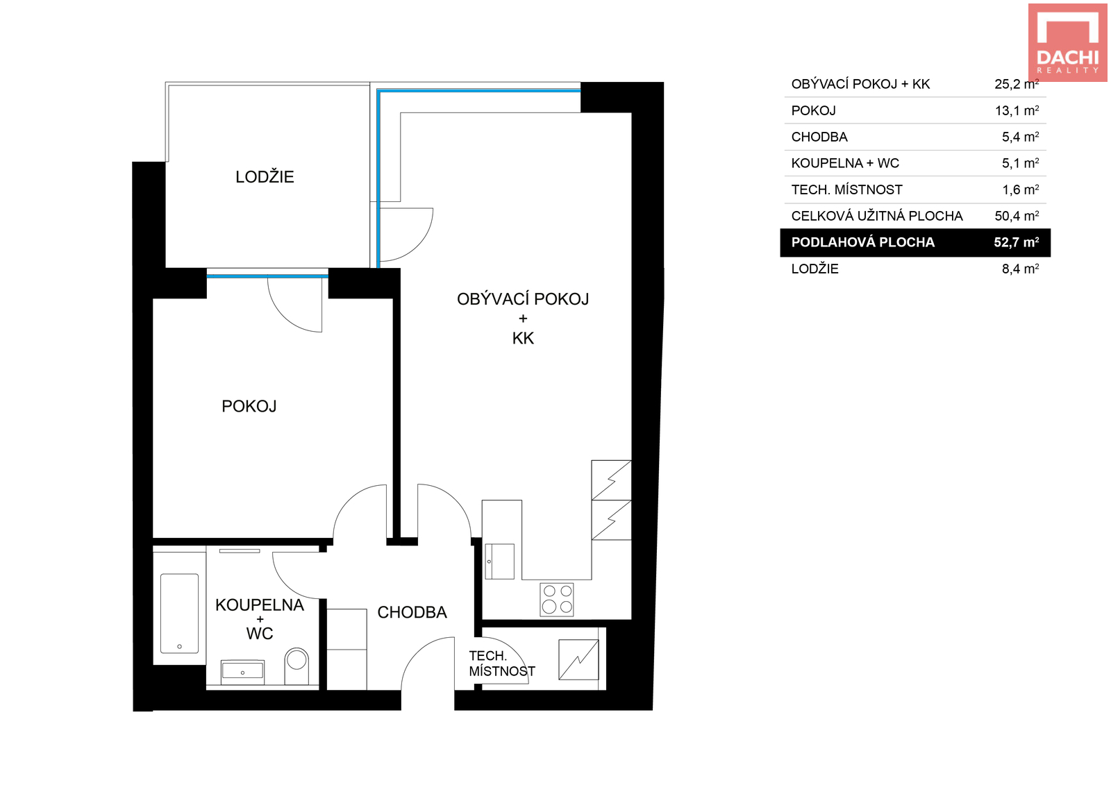
Nabízíme ke koupi příjemný a světlý byt o dispozici 2+kk v oblíbené rezidenční části Olomouce – Holandská čtvrť na ulici Aloise Rašína. Byt se nachází v 6. nadzemním podlaží bytového domu s výtahem a má podlahovou plochu 52 m² a prostornou lodžii o velikosti 8 m². Díky jihovýchodní orientaci je interiér krásně prosvětlený po celý den a působí vzdušným dojmem.
Dispozice bytu je prakticky řešena – z prostorné předsíně je vstup do všech místností, pokoje jsou tedy neprůchozí a z každého z nich vede přímý vstup na lodžii, která nabízí dostatek prostoru pro odpočinek či posezení. Obývací pokoj s kuchyňským koutem tvoří hlavní obytnou část bytu, ložnice poskytuje dostatek klidu a soukromí. Samozřejmostí je koupelna a samostatné WC, nechybí ani komora s přívodem vody a odpadem pro pračku.
Byt se prodává částečně vybavený, takže je ideální jak pro vlastní bydlení, tak i jako investiční příležitost – po drobných úpravách ho můžete ihned pronajmout. Potěší vás také nízké měsíční náklady na provoz, díky nimž je bydlení úsporné a bez zbytečných výdajů. Samotná lokalita pak nabízí veškerou občanskou vybavenost a skvělou dostupnost do centra.
Pokud vás tato nabídka zaujala, neváhejte mě kontaktovat – ráda vám byt osobně ukážu a zodpovím všechny vaše dotazy. Těším se na společnou prohlídku.
Základní údaje
Kanalizace
Veřejná kanalizace
Konstrukce
Jiná
Balkóny
Lodžie
ID nemovitosti
20027
Datum vložení
6. října 2025
Vlastnictví
soukromé
Stav nemovitosti
Bezvadný
Plocha pozemku
53 m²
Plocha obytná
53 m²
Plocha užitná
50 m²
Patro
5.
Energetická náročnost
A - Mimořádně úsporná
