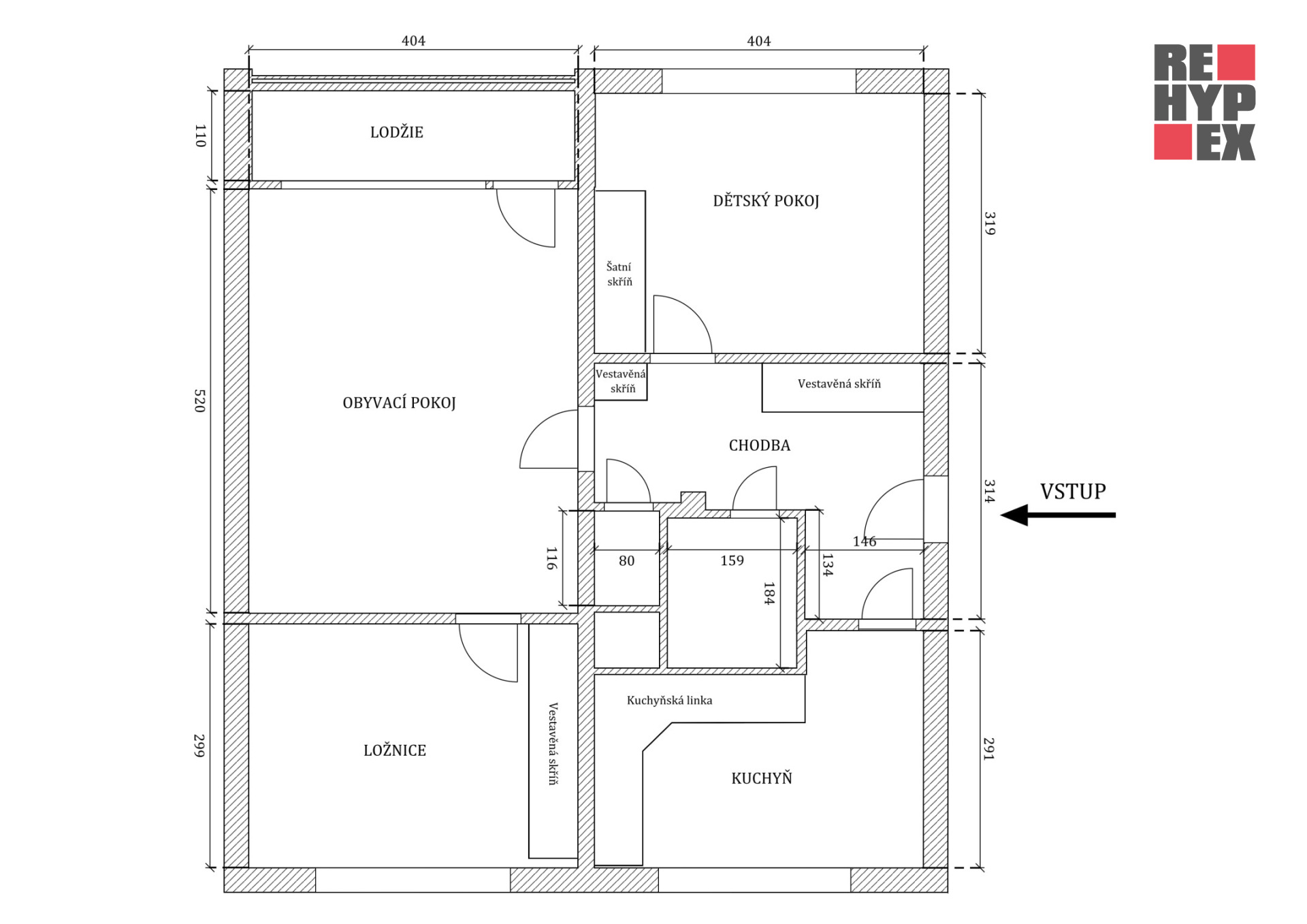
Prodej bytu 3+1 77 m², Fričova, Liberec
6 600 000 Kč
C
Popis nemovitosti
Hledáte prostor, kde se vaše rodina bude cítit opravdu šťastně? Tento byt o dispozici 3+1 s lodžií a sklepem prošel kompletní rekonstrukcí a čeká jen na nové majitele, kteří ocení jeho útulnost i moderní vybavení.
Co vás nadchne:
- Luxusní kuchyňská linka s vestavěnými spotřebiči
- Nové rozvody, koupelna a oddělené WC
- Vestavěné skříně v předsíni i ložnici – dostatek místa pro všechny vaše věci
- Prostorná lodžie s výhledem do přírody, kde si ráno vychutnáte kávu nebo večer sklenku vína
- K bytu patří i sklepní kóje – praktické místo pro sezónní vybavení
Byt se nachází ve vyhledávané části Vesec v Liberci, která je ideální pro rodinný život. V bezprostřední blízkosti najdete školu, školku, obchody i dětská hřiště. Milovníky sportu a přírody potěší Vesecký areál, kde si můžete užít procházky, cyklistiku nebo zimní aktivity.
Neméně důležité je i blízké napojení na dálnici.
Byt je navržen tak, aby poskytoval nejen komfort, ale i pocit bezpečí a pohody. Každý detail rekonstrukce byl promyšlen s ohledem na rodinný život – od kvalitních materiálů až po chytré úložné prostory.
Tento byt není jen nemovitost, je to nový domov, kde se budou psát váš rodinný příběh.
Základní údaje
Způsoby vytápění
Ústřední - dálkové
Balkóny
Balkon, Lodžie, Terasa
Parkování
Parkování na ulici, Vlastní parkovací stání
ID nemovitosti
N2022
Datum vložení
před 23 hodinami
Vlastnictví
soukromé
Stav nemovitosti
Po rekonstrukci
Plocha celková
77 m²
Plocha užitná
77 m²
Patro
7.
Energetická náročnost
C - Úsporná
