Prodej bytu 3+1 56 m², Růžová, Most
2 100 000 Kč
G
Popis nemovitosti
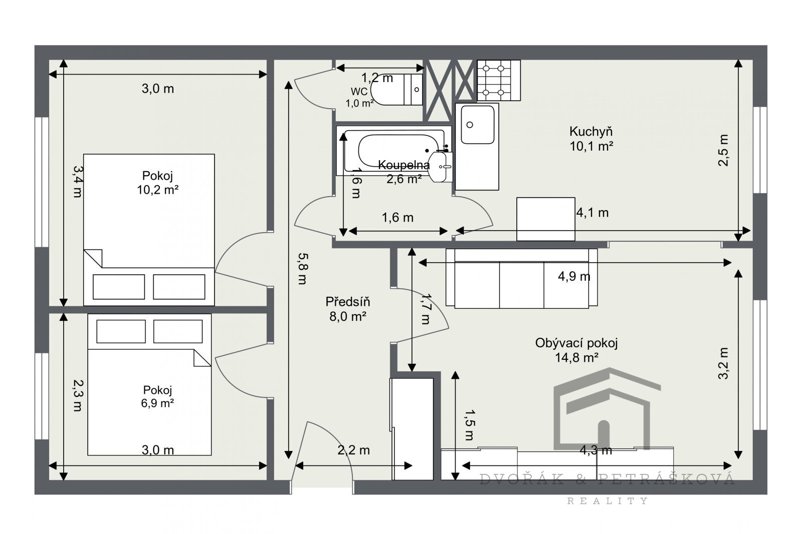
Realitní společnost Dvořák & Petrášková reality vám nabízí k prodeji byt v osobním vlastnictví 3+1 se sklepem a komorou na patře o celkové ploše 56 m2.
Bytová jednotka je ve stavu před rekonstrukcí a je umístěná v posledním, tedy 8.patře panelového domu s výtahem na adrese Růžová 3088/17. Na patře jsou pouze 3 byty s klidnými sousedy, kteří zde žijí řadu let. Byt disponuje předsíní s vestavěnými skříněmi, vstupy do dvou ložnic, obývacího pokoje, do koupelny a na toaletu. Na obývací pokoj navazuje oddělená kuchyně s místem na jídelní stůl a vstupem do koupelny.
Koupelna s vanou je v původním stavu s umakartovým jádrem a toaleta je umístěna samostatně. Rozvody elektřiny jsou původní, tedy v hliníku. Byt je vhodný k celkové rekonstrukci. Nábytek v nemovitosti můžeme ponechat či odvést, obojí v rámci kupní ceny. V bytě je plyn a elektřina. Teplou vodu a ohřev TUV zajišťuje dálkový rozvod z teplárny. K bytu náleží komora na patře (2 m2) a sklep (2 m2) v prvním podzemním patře.
Panelový dům je zateplený, okna jsou plastová a střecha byla taktéž v posledních letech revitalizována.
Byt není zatížený žádnými právními vadami. Plánek 2D reflektuje současný stav bytu, 3D poté návrh možné rekonstrukce koupelny a kuchyně.
Parkování je možné před domem.
Měsíční poplatky v rámci SVJ jsou pro 2 osoby 4.800,- Kč.
V lokalitě je veškerá občanská vybavenost, školy, školky, v blízkosti oblíbený OC Centrál Most a Aquapark Most.
S financováním Vám ráda pomohu. Prohlídky jsou možné po předchozí domluvě.
Pro více informací mě neváhejte kontaktovat.
Základní údaje
Elektřina
230 V
Konstrukce
Panelová
Druhy bytů
Klasický
ID nemovitosti
25035
Datum vložení
včera
Vlastnictví
soukromé
Stav nemovitosti
K rekonstrukci
Plocha užitná
56 m²
Patro
7.
Energetická náročnost
G - Mimořádně nehospodárná
