Prodej bytu 3+1 85 m², Revoluční, Nýřany
5 990 000 Kč
C
Popis nemovitosti
Prodej exkluzivního bytu 3+1 po kompletní rekonstrukci – Revoluční ulice, Nýřany
Nabízíme Vám ojedinělou příležitost ke koupi zrekonstruovaného bytu o dispozici 3+1, který se nachází v žádané lokalitě Nýřan, v Revoluční ulici 1022.
Byt prošel kompletní a precizní rekonstrukcí, s důrazem na detail, kvalitu použitých materiálů a maximální komfort pro budoucí majitele.
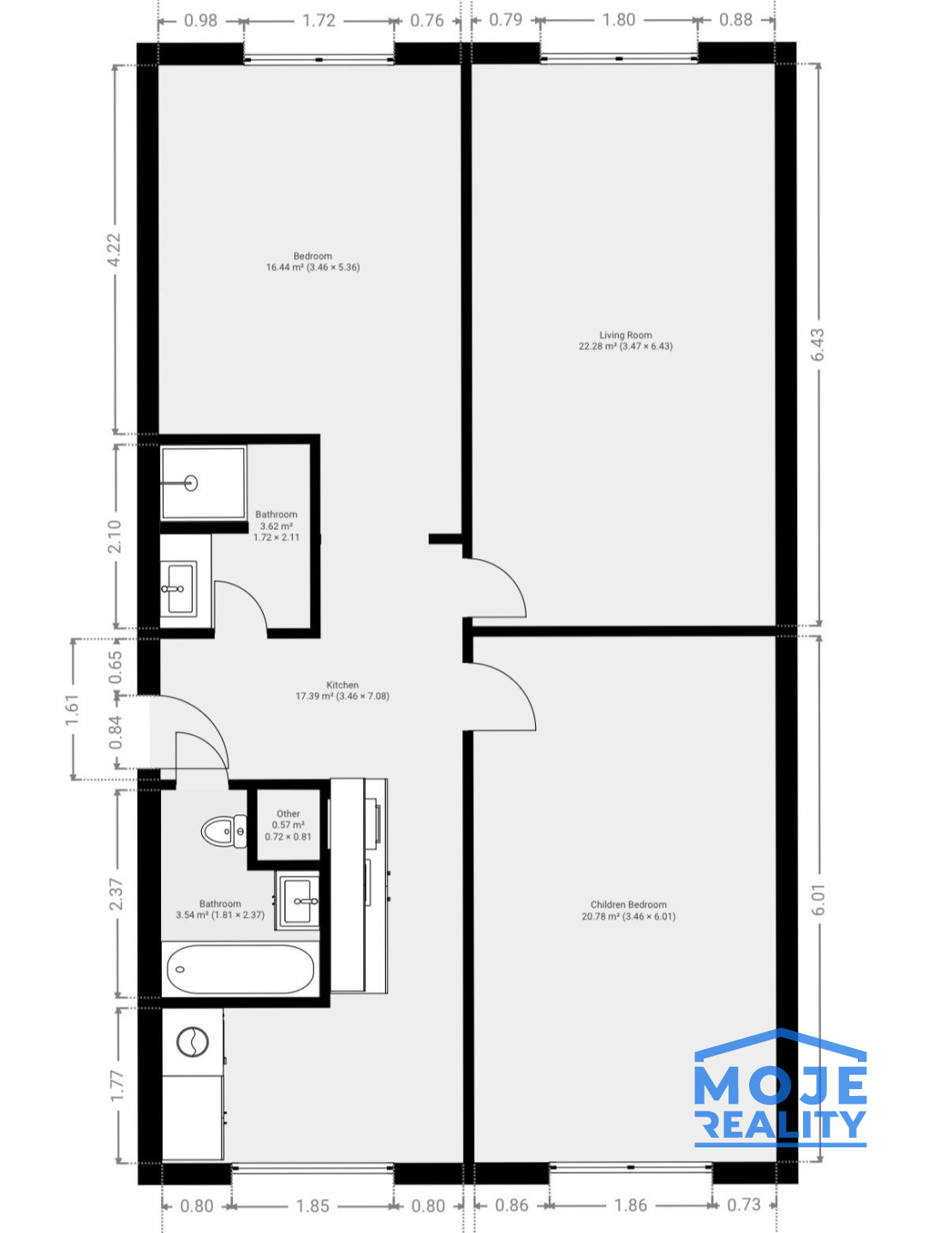
vybavení a provedení:
dvě moderní koupelny – jedna s prostorným sprchovým koutem, druhá s vanou a toaletou
atypická dispozice s prostornou chodbou, ze které se vstupuje do dvou samostatných pokojů a jedné velké otevřené místnosti
kuchyňská linka vyrobená na míru, plně vybavená kvalitními spotřebiči (sklokeramická deska, trouba, myčka, digestoř)
oddělený praktický kout s pračkou, sušičkou, vestavěnou lednicí s mrazákem a velkými úložnými prostory
byt je prosvětlený díky velkým oknům, která jsou doplněna žaluziemi
kompletní výměna dveří včetně obložek a vchodových dveří
nové rozvody elektřiny, vody i odpadů, vyrovnané podlahy s celoplošnou dřevěnou krytinou, nové štuky a elektroinstalace
Benefity bydlení:
vytápění i ohřev teplé vody zajištěny dálkově (studená voda obecní)
prostorný sklep v podzemním podlaží
k bytu náleží také místnost o velikosti 20 m² k výhradnímu užívání + společná kolárna
bytový dům je kompletně revitalizovaný, zateplený a velmi udržovaný
nízké měsíční náklady – cca 4 000 Kč včetně fondu oprav
energetická náročnost budovy – třída C
příjemná poloha ihned vedle školky a dětského hřiště
dostatek parkovacích míst v přilehlé ulici
byt se nachází ve vyvýšeném přízemí bytového domu
Tento byt je ideální pro rodinu i náročnější klienty, kteří hledají komfortní bydlení bez nutnosti dalších investic. Byt díky kompletní rekonstrukci poskytuje moderní a pohodlné zázemí pro nové majitele
Pro více informací nebo sjednání prohlídky mě neváhejte kontaktovat.
Základní údaje
Dopravní spojení
Autobus, Vlak, MHD, Silnice, Dálnice
Elektřina
230 V
Zdroje vody
Veřejný vodovod
Způsoby vytápění
Ústřední - dálkové
Konstrukce
Panelová
Balkóny
Balkon, Lodžie, Terasa
Inženýrské sítě
Internet, Kabelová TV
Parkování
Parkování na ulici, Vlastní parkovací stání
ID nemovitosti
N398
Datum vložení
před měsícem
Vlastnictví
soukromé
Stav nemovitosti
Po rekonstrukci
Plocha celková
85 m²
Plocha užitná
85 m²
Patro
1.
Energetická náročnost
C - Úsporná
