Prodej bytu 3+1 76 m², Pražského, Praha
8 950 000 Kč
B
Popis nemovitosti
Stojíte před skvělou příležitostí stát se vlastníkem bytu s výhledem na panorama Prahy ve vyhledávané části Hlubočepy sídliště Barrandov.
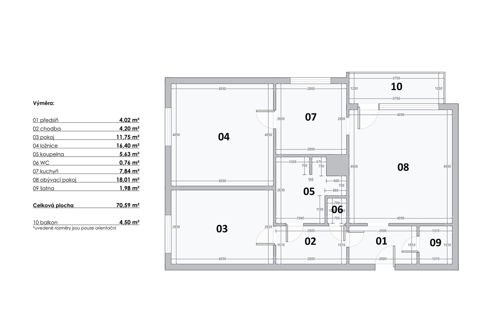
Nabízíme k prodeji útulný a světlý byt 3+1 s užitnou plochou 76 metrů čtverečních, nacházející se na šestém patře, sedmipatrového domu s výtahem na adrese Pražského 636/34. Dům je situován v klidné části s výbornou dostupností veřejné dopravy, obchodů a služeb.
Byt se pyšní nejen skvělým rozložením, ale světlostí díky jihozápadní orientaci. Dispozice bytu zahrnuje obývací pokoj, dvě neprůchozí ložnice, koupelnu, samostatné WC a praktickou komoru. Z obývacího pokoje je přístup na zasklenou lodžii o velikosti 4,5 metru čtverečního, která umožňuje pohodlné posezení s nádherným výhledem na okolí bez ohledu na počasí.
Interiér bytu je částečně zařízen. Součástí vybavení jsou spotřebiče včetně pračky. Bezpečnostní prvek je zajištěn vchodem na čip a domovním telefonem. Byt je ideální volbou jak pro rodiny s dětmi kvůli blízkosti škol, školek a parků, tak pro jednotlivce či páry, kteří ocení blízkost kultury a zábavních možností, jež nabízí metropole.
Nový majitel má možnost si na tento byt vzít hypotéku, což může proces koupi usnadnit.
Cena tohoto bytu je stanovena na 8 950 000 CZK a zahrnuje také sklep. Tato nemovitost je ideální volbou pro ty, kteří hledají komfortní bydlení v Praze s vynikajícím spojením do centra a zároveň si potrpí na klid a soukromí.
Nejenže je lokalita Hlubočepy známá svou kompletní občanskou vybaveností včetně širokého výběru škol, zdravotnických zařízení, obchodů a míst pro volný čas, ale také vyniká skvělou dopravní dostupností. Veřejná doprava včetně autobusu a metra je na dosah, stejně jako hlavní dopravní tepny, které umožní snadné a rychlé spojení s ostatními částmi Prahy i okolím.
Pokud tedy hledáte byt v Praze, který kombinuje moderní bydlení s přístupem k zeleni a zároveň nabízí výhody městského života, tento byt by rozhodně měl být ve vašem úvahu. Navštívit tento byt a prožít pocit domova je něco, co si zaslouží každý zájemce o kvalitní bydlení.
Základní údaje
Cena nezahrnuje
Provize
Dopravní spojení
Metro, MHD
Konstrukce
Panelová
Balkóny
Lodžie
Parkování
Parkování na ulici
ID nemovitosti
967093
Datum vložení
před 10 dny
Vlastnictví
soukromé
Stav nemovitosti
Bezvadný
Plocha obytná
82 m²
Plocha užitná
76 m²
Patro
6.
Energetická náročnost
B - Velmi úsporná
