Prodej bytu 3+1 73 m², Štursova, Žďár nad Sázavou

5 000 000 Kč D
bez poplatků

Nemovitost nabízí

Bezrealitky s.r.o

Bezrealitky s.r.o.
Karolinská 661/4, Praha

Popis nemovitosti

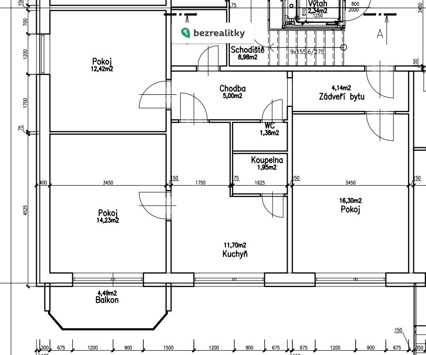
Nabízíme přízemní byt 3+1 umístěný v čtyřpodlažním panelovém domě na sídlišti Pod Vodojemem. Nemovitost včetně příslušenství má celkovou plochu 73,7 m2, což zahrnuje prostorný obývací pokoj, dva samostatné pokoje a kuchyň. Koupelna a WC jsou samostatné ve zděném jádru (rekonstrukce proběhla v roce 2011). Dále je zde samostatné šatna cca. 2,8 m2. K bytu náleží balkon o ploše cca. 4,5 m2, sklep 1,5 m2 a komora 1,5 m2 na patře, což zvyšuje úložné možnosti nad standard běžných paneláků.Rozměry jednotlivých místností najdete v půdorysu bytu, který je ve fotogalerii.Byt je, s výjimkou jádra a kuchyňské linky, v původním stavu. Dům je celkově zateplen, energetický štítek má hodnotu D.V domě je výtah a bezbariérový vstup, což výrazně zvyšuje komfort bydlení i pro osoby s pohybovým omezením. Před domem je dostatek parkovacích míst. Dům je napojen na zemní plyn, elektřinu a samozřejmě i pitnou vodu. V suterénu domu je k dispozici kolárna, sušárna a další společné prostory.Budoucí majitel má možnost vše ponechat a ihned bydlet nebo celou jednotku kompletně či částečně rekonstruovat a vytvořit si tak bydlení na míru, kde dalších několik desítek let nebude nutná žádná investice.Co se lokality týče, tak kousek od domu začíná les, kde je přehrada Staviště a za domem leží pole, kde není, s ohledem na CHKO Ždárské vrchy, v plánu další výstavba. Sídliště Pod Vodojemem je nejen v rámci Žďáru, ale i jiných municipalit napříč ČR, naprostý unikát, který by se dal shrnout hesly klid, příroda a bezpečí.Dokážeme zajistit financování prostřednictvím hypotéky nebo úvěru ze stavebního spoření za nejlepší sazby na trhu. Samozřejmě zajistíme i kompletní právní servis včetně advokátní úschovy a zadání změny v katastru nemovitostí.Pokud byste trvali na koupi přes realitní kancelář, pak je vše otázkou dohody a ceny. Ničemu se nebráníme. Tato nemovitost je určena výhradně přímým zájemcům o koupi. Na inzerát můžete také reagovat přímo na webu Bezrealitky: https://www.bezrealitky.cz/nemovitosti-byty-domy/954090-nabidka-prodej-bytu-stursova-zdar-nad-sazavou

Základní údaje

Cena nezahrnuje
Poplatky
Konstrukce
Panelová
Balkóny
Balkon
ID nemovitosti
954090
Datum vložení
před 20 dny
Vlastnictví
soukromé
Stav nemovitosti
K rekonstrukci
Plocha užitná
73 m²
Energetická náročnost
D - Méně úsporná

Poloha na mapě

Nemovitost nabízí

Bezrealitky s.r.o

Bezrealitky s.r.o.
Karolinská 661/4, Praha