Prodej bytu 3+kk 83 m², Žižkova, Horoměřice
10 990 000 Kč
B
Popis nemovitosti
Hledáte bydlení v těsné blízkosti hlavního města Prahy? Tak právě pro Vás máme ke koupi světlý a prostorný třípokojový byt s kuchyňským koutem v útulné obci Horoměřice, která je součástí okresu Praha západ. Tento krásný byt je situován v prvním nadzemním podlaží cihlové budovy s výtahem a nabízí komfortní bydlení v blízkosti hlavního města.
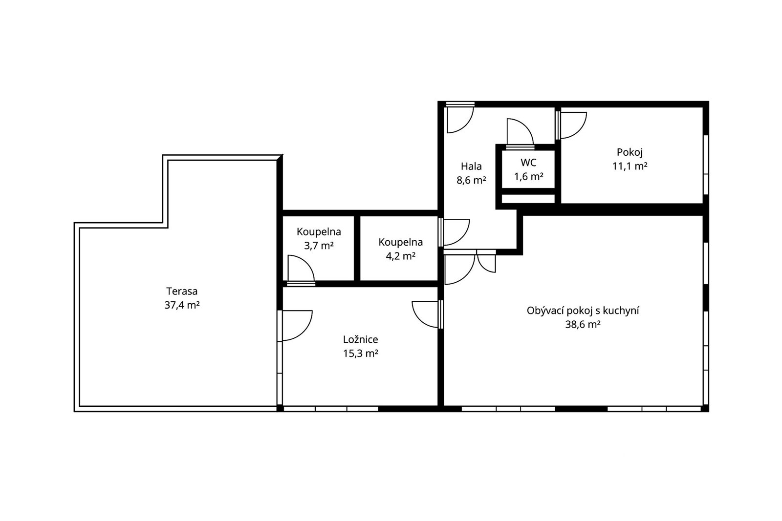
Bytová jednotka disponuje obývacím pokojem propojeným s kuchyňským koutem, dvěma pokoji, koupelnou se sprchovým koutem a toaletou, koupelnou s vanou, samostatným WC a vstupní chodbou. Celkový obytný prostor je dokonale využit s důrazem na praktičnost a pohodlí. K bytu s podlahovou plochou 83 m2 náleží sklepní kóje 1 m2 a prostorná terasa o rozloze 37 m2, což je ideální pro relaxaci, nebo trávení času s rodinou a přáteli. Jednotka je osazena dřevěnými eurookny s bezpečnostními izolačními trojskly, na podlahách je položena kvalitní dřevěná vícevrstvá lamelová plovoucí podlaha a keramická dlažba. Kuchyňská linka je kompletně vybavena elektrickými spotřebiči včetně sklokeramické varné desky, lednice s mrazákem, elektrické trouby, digestoře a myčky nádobí. Vytápění a ohřev vody je zajištěn centrálně pro celý objekt plynovým kotlem umístěným v podzemním podlaží.
Nespornou výhodou je užívání vlastního garážového parkovacího stání v suterénu budovy, což přináší obrovské pohodlí pro majitele vozu.
Energetická třída budovy je označena indexem "B", což představuje výborný energetický standard s nízkou energetickou náročností, doloženou certifikátem o energetické náročnosti budov. I díky tomuto je bydlení v tomto objektu ekonomicky úsporné a ekologicky přívětivé.
Horoměřice jsou obec v okrese Prahazápad ve Středočeském kraji, která leží při severozápadní hranici hlavního města Prahy. Dopravní dostupnost do hlavního města je výborná, s možností využívání v rámci Pražské integrované dopravy. Zastávky autobusu jsou v pěší vzdálenosti a pro ty, kteří dávají přednost individuální dopravě, je byt ideálně situován poblíž silnice druhé třídy, což umožňuje snadné spojení s Prahou a dalšími částmi regionu.
Obec je vyhledávanou rekreační oblastí Prahy. Je zde několik zahrádkářských a chatových osad, kde tráví volný čas řada Pražanů. Prochází zde řada značených turistických cest a nově též cykloturistických tras. Turistické značky vás zavedou do Šárky, Lysolají a Suchdola. V blízkosti je veškerá občanská vybavenost, sportovní a kulturní vyžití. Lokalita tím garantuje vše potřebné pro pohodlné a bezproblémové bydlení.
Tato nabídka představuje skvělou příležitost k nabytí příjemného domova. Byt je ihned volný k předání novým majitelům a představuje ideální volbu pro ty, kdo hledají kvalitní poměr mezi cenou a hodnotou nabízeného bydlení. Díky perfektní znalosti trhu a kvalitnímu klientskému servisu se v případě zájmu můžete spolehnout, že Vám doporučíme nejlepší financování Vaší nemovitosti a pomůžeme vyřídit veškeré náležitosti. Více informací a prohlídku Vám zajistí realitní makléř pan Petr Janíček.
Základní údaje
Dopravní spojení
Silnice
Elektřina
230 V
Kanalizace
Veřejná kanalizace
Zdroje vody
Veřejný vodovod
Konstrukce
Zděná
Balkóny
Terasa
Inženýrské sítě
Internet
Parkování
Garáž
ID nemovitosti
969888
Datum vložení
před 7 dny
Vlastnictví
soukromé
Stav nemovitosti
Novostavba
Plocha obytná
121 m²
Plocha užitná
83 m²
Energetická náročnost
B - Velmi úsporná
