Prodej bytu 3+kk 90 m², třída Edvarda Beneše, Hradec Králové

7 630 000 Kč C

Nemovitost nabízí

Jana Štěpánová

QARA s.r.o.
Šafaříkova 201/17, Praha

Popis nemovitosti

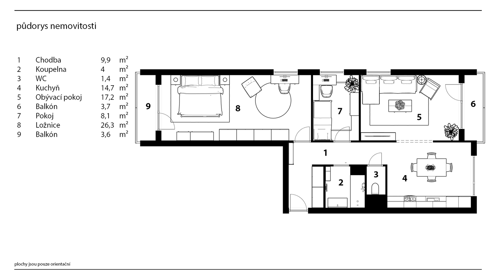
Rádi bychom vám tímto nabídli prostorný byt 3+kk, který bude v lednu 2026 převeden do osobního vlastnictví. Byt je po rekonstrukci v r. 2020: nové jádro, koupelna, WC, propojení kuchyně s obývacím pokojem, nové podlahy, kuchyň, elektrické rozvody. Na domě je plánována revitalizace a zateplení v r. 2026, které se propíše do nižších spotřeb energií. Součástí budou venkovní žaluzie na 3 oknech na JZ. Revitalizace se neprojeví nijak významně do příspěvků FO - max o 5 Kč/m2. K příjemnému a komfortnímu bydlení přispívá 2x lodžie 3 m2 a okna do tří světových stran dodávají bytu opravdu nadmíru světla. Tento byt je ve velmi dobrém stavu a je ideální volbou pro pár nebo rodinu, kteří hledají komfortní bydlení v blízkosti centra města. Dispozice bytu nabízí příjemné a vzdušné prostory, kde si každý člen rodiny přijde na své soukromí. Ložnice je opravdu prostorná - viz. přiložené půdorysy a je možné ji rozdělit na dva menší pokoje. K bytu patří sklep. Dům je vybaven dvěma výtahy. Lokalita, ve které se byt nachází, je velmi vyhledávaná. V blízkém okolí najdete veškerou občanskou vybavenost, včetně obchodů, restaurací, polikliniky a nákupního centra. Díky skvělé dostupnosti MHD a silnice se snadno dostanete do centra města nebo na jiné důležité cíle. Celkově se jedná o ideální nemovitost pro ty, kteří hledají pohodlné bydlení s veškerým komfortem na dosah ruky. V případě zájmu o prohlídku nás neváhejte kontaktovat.

Základní údaje

Dopravní spojení
Autobus, MHD, Silnice
Kanalizace
Veřejná kanalizace
Zdroje vody
Veřejný vodovod
Konstrukce
Panelová
Balkóny
Lodžie
ID nemovitosti
17944
Datum vložení
před 3 dny
Vlastnictví
družstevní
Stav nemovitosti
Bezvadný
Plocha užitná
90 m²
Patro
4.
Energetická náročnost
C - Úsporná

Poloha na mapě

Nemovitost nabízí

Jana Štěpánová

QARA s.r.o.
Šafaříkova 201/17, Praha