Prodej bytu 3+kk 44 m², Václava Košaře, Ostrava
2 960 000 Kč
G
Popis nemovitosti
Malý byt nafouknutý do obřích rozměrů. 3+kk na výměře 44m2 kde je efektivně využitý každý centimetr pro pohodlné bydlení i větší rodiny.
Nabízený družstevní zrekonstruovaný byt je v 1.patře zrevitalizovaného bytového domu v klidné a slušné části Dubiny, kde si jej během chvilky zamilujete pro jeho přehledné uspořádání, koupelnu přístupnou ihned z chodby a obrovskou skříň hned za vstupními dveřmi.
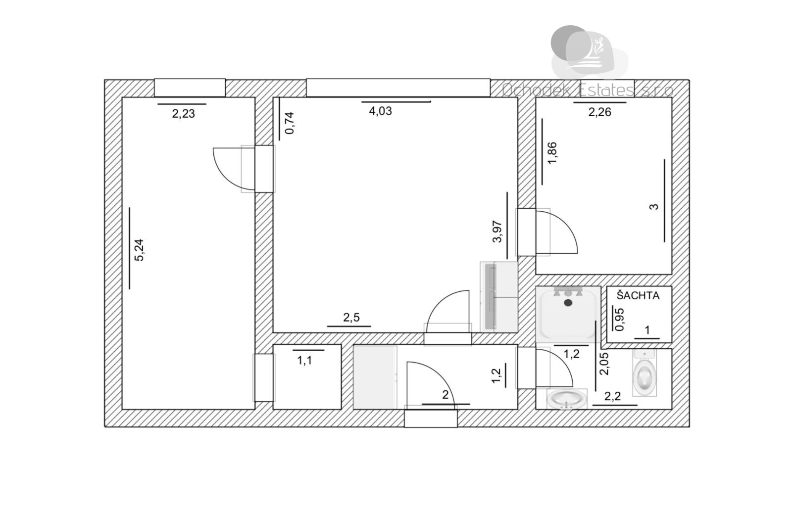
Ale vezměme to popořadě. Po vstupu do bytu se octnete v 3,6m2 velké chodbě, jejíž součástí je nalevo umístěná vestavěná skříň s atypickou hloubkou 97cm, kam dokážete uložit opravdu hooodně věcí. Napravo od vstupních dveří je se svými 3,4m2 koupelna s prostorným sprchovým koutem, toaletou a umyvadlem.
Dále pak vstoupíte do prostředního velkého pokoje s výměrou 16m2, který je rozdělen na část s rohovou pohovkou, kuchyňským koutem a jídelním stolem. Kuchyňská linka je menších rozměrů ale v galerii pak najdete zpracovaný návrh pro zvětšení na kuchyňskou linku přes celou stěnu, kdy tímto dosáhnete plnohodnotné kuchyně s dostatečným množstvím skladovacích prostor a také větší pracovní a přípravnou plochou jak pro masterchefa.
Vpravo i vlevo od tohoto pokoje se nacházejí dva menší pokojíky o výměře 6,85m2 vpravo a 11,7m2 nalevo. Ten větší je navíc vybaven výklenkem 1,3m2 sloužícím jako šatna. Oba tyto v současném uspořádání slouží jako ložnice.
Jako další úložný prostor vás nadchne i pořádný sklep o výměře 1,9m2.
Ať už byt využijete pro občasné přespání, nebo pro dlouhodobé bydlení, jistě oceníte družstvo, které spravuje výlučně tento jediný panelový dům a vzorně se o něj stará. Dále také slušné a klidné sousedy, parkování přímo před domem, nebo třeba dětská hřiště v okolí, na nichž se vyřádí děti od nejmenších až po puberťáky - je tu i menší skatepark. V docházkové vzdálenosti je MŠ i ZŠ, potraviny, restaurace, hospůdka, lékárna, tramvajové i autobusové zastávky a další.
Financování družstevního bytu bankou vám rádi zajistíme.
Pokud vás tento byt zaujal jako mě, ozvěte se pro domluvení prohlídky. Rád vás tu provedu.
Pozn.: Energetický štítek v nejbližší době doplníme, zatím musíme ze zákonných důvodů uvést třídu G. Uvedená kupní cena nezahrnuje zprostředkovatelský poplatek 150.000Kč.
Základní údaje
Kanalizace
Veřejná kanalizace
Zdroje vody
Veřejný vodovod
Způsoby vytápění
Ústřední - dálkové
Konstrukce
Panelová
Vybavení pronájem
Kuchyňská linka
Druhy bytů
Klasický
Inženýrské sítě
Telefon, Internet, Kabelová TV, Plyn
Parkování
Parkování na ulici
Vytápění podrobnosti
Radiátory
ID nemovitosti
25-05-002
Datum vložení
před 3 dny
Vlastnictví
družstevní
Stav nemovitosti
Po rekonstrukci
Plocha obytná
44 m²
Plocha užitná
44 m²
Patro
1.
Energetická náročnost
G - Mimořádně nehospodárná
