Prodej bytu 3+kk 79 m², Weisova, Veselí nad Lužnicí
4 950 000 Kč
D
Popis nemovitosti
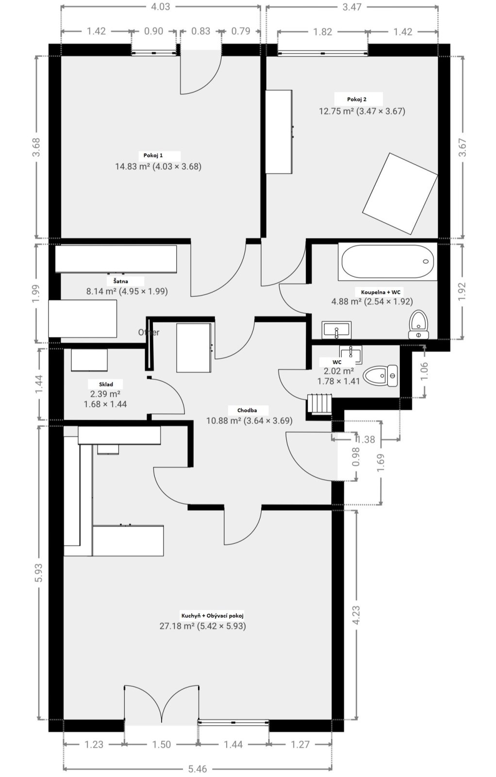
Nabízíme k prodeji velmi pěkný a dobře řešený byt o dispozici 3+kk s užitnou plochou 89 m², který se nachází ve 2. patře zděného bytového domu v ulici Weisova ve Veselí nad Lužnicí. Dům byl postaven v roce 1999 a nachází se v příjemné, udržované zástavbě s výbornou dostupností do centra města.
Byt působí vzdušně a nabízí funkční dispoziční uspořádání:
obývací pokoj (20 m²) propojený s kuchyňským koutem (6,7 m²),
dětský pokoj (14 m²),
ložnice (12,6 m²),
předsíň (9 m²),
koupelna (4,3 m²),
samostatné WC (1,8 m²),
komora (2,5 m²),
šatna (8 m²).
K bytu náleží dva balkony (5,6 m² a 4,4 m²) s pěkným výhledem do okolí.
Vytápění zajišťuje nový samostatný plynový kondenzační kotel z roku 2023, který slouží i k ohřevu vody. Energetická náročnost budovy: třída D.
Parkování je možné veřejně před domem a v jeho blízkosti.
V okolí se nachází škola, školka, dětské hřiště, obchody i autobusová zastávka, vše v pohodlné pěší vzdálenosti. Lokalita je klidná, s množstvím zeleně a dobrým napojením na hlavní dopravní tahy směrem na České Budějovice, Tábor a Prahu.
Základní údaje
Elektřina
230 V
Způsoby vytápění
Lokální - plynové, Ústřední - plynové
Konstrukce
Zděná
Balkóny
Balkon
Vybavení pronájem
Kuchyňská linka
Druhy bytů
Klasický
Inženýrské sítě
Plyn
Vytápění podrobnosti
Plyn, Radiátory
ID nemovitosti
CB251111
Datum vložení
včera
Vlastnictví
soukromé
Stav nemovitosti
Dobrý
Plocha užitná
79 m²
Patro
1.
Energetická náročnost
D - Méně úsporná
