Prodej bytu 5+1 a více 118 m², Dominova, Praha

11 990 000 Kč G
bez poplatků

Nemovitost nabízí

Bezrealitky s.r.o

Bezrealitky s.r.o.
Karolinská 661/4, Praha

Popis nemovitosti

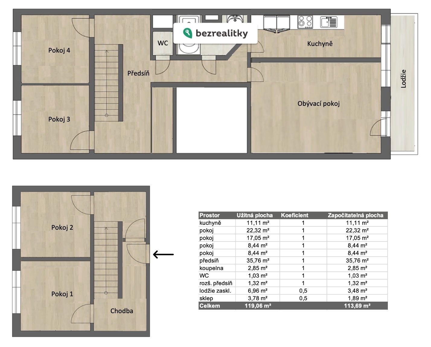
Přímo od majitele nabízím k prodeji mezonetový byt s jedinečnou dispozicí 5+1 o celkové podlahové ploše 119 m2 v panelové budově na ulici Dominova, sedmé podlaží ze sedmi. Byt je situován v klidné části Prahy 5, v bezprostřední blízkosti zeleně a metra Hůrka.Byt je udržovaný, s možností okamžitého užívání, ale zasloužil by si rekonstrukci. Po vstupu do bytu vás přivítá předsíň, z ní vstup do pokoje cca 12 m2 po pravé straně a menší pokoj cca 8,5 m2 přímo rovně. Po schodech vystoupáte do vyššího patra, kde jsou obdobné dva pokoje, vestavěné skříně, oddělená toaleta a samostatná koupelna. Kuchyně je umístěna dále chodbou vlevo, obývací pokoj (cca 23 m2) vpravo; z něj je vstup na lodžii (7 m2). Byt má sklepní kóji (3,78 m2).Výborná orientace v posledním patře zaručuje klidné prostředí a ničím nerušené výhledy.Lokalita nabízí kompletní občanskou vybavenost: školy, obchody, sportoviště i rychlou dostupnost MHD. Ideální pro rodinu hledající prostorný byt s promyšlenou dispozicí v panelovém domě.Nemovitost osobně vlastněná, připravena k převodu od 1.2.2026. Pro bližší informace a dohodu o prohlídce mě neváhejte kontaktovat. Tato nemovitost je určena výhradně přímým zájemcům o koupi. Na inzerát můžete také reagovat přímo na webu Bezrealitky: https://www.bezrealitky.cz/nemovitosti-byty-domy/965119-nabidka-prodej-bytu-dominova-praha

Základní údaje

Cena nezahrnuje
Poplatky
Konstrukce
Panelová
Balkóny
Lodžie
ID nemovitosti
965119
Datum vložení
před 15 dny
Vlastnictví
soukromé
Stav nemovitosti
Dobrý
Plocha užitná
118 m²
Patro
6.
Energetická náročnost
G - Mimořádně nehospodárná

Poloha na mapě

Nemovitost nabízí

Bezrealitky s.r.o

Bezrealitky s.r.o.
Karolinská 661/4, Praha