Prodej bytu 5+kk 121 m², Smrková, Srubec
10 490 000 Kč
C
Popis nemovitosti
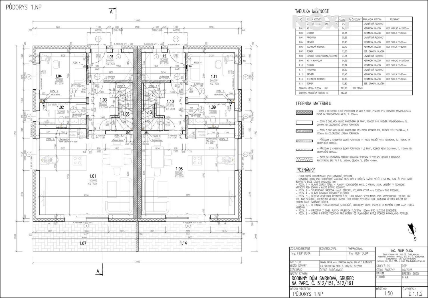
V atraktivní lokalitě Srubec, v klidné ulici Smrková, právě roste před očima krajní dvoupodlažní řadový dům o dispozici 5kk a celkové užitné ploše 121 m². Dům je součástí dvojdomku, který nabízí 2 bytové jednotky postavené jako samostatné krajní řadové domy s vlastním vstupem, zahradou i dvěma parkovacími stáními. Rodinný dům č. 1 je již prodaný a právě máte příležitost koupit dům č.2, který nabízí mimořádně komfortní a nadstandardní bydlení. Dům má smysluplně řešený půdorys. V přízemí Vás přivítá prostorné zádveří (5,43 m²), na které navazuje chodba (5,14 m²), pracovna nebo ložnice chcete-li (9,69 m²), koupelna se sprchovým koutem a toaletou (4,69 m²) a technická místnost/sklad (2,10 m²). Dominantou přízemí je nadstandardně prostorný obývací pokoj s kuchyní o celkové užitné ploše 34,84 m² se vstupem na terasu (13,8 m²) a zahradu (174,2 m²). Do prvního patra (2.NP) vede pohodlné schodiště (6 m²). V patře se nachází klidová zóna o 3 pokojích. Ložnice (17,25 m²) s praktickou šatnou, další pokoj (14,53 m²) se šatnou a třetí pokoj (15,6 m²). Dále se zde nachází koupelna s vanou a toaletou (7,24 m²), vše spojeno chodbou (5,04 m²). Každý metr čtvereční zde má své opodstatnění. Dům je navržen tak, aby odpovídal potřebám moderní rodiny a nabízel jak prostor pro společný život, tak i klid a soukromí. Na stavbu jsou použity kvalitní materiály s důrazem na design a dlouhou životnost. V ceně domu jsou zahrnuty interiérové dveře a zárubně, dlažby, sanita v koupelnách značky Hans Gröhe, podlahy Alpha Vinyl a kastlíky včetně žaluzií. Do ceny domu je dále zahrnuta terasa za domem, nezámrzný venkovní kohout na vodu, oplocení a zídka mezi domy. Kuchyňskou linku, osvětlení, nábytek, případně pergolu, apod. si řešíte na vlastní náklady. Součástí inzerátu jsou i vizualizace, které vám pomohou s představou, jak by mohl Váš nový domov vypadat, můžete tak čerpat inspiraci pro uspořádání a vybavení interiéru. Provoz domu bude nízkoenergetický, vytápění je řešeno kondenzačním plynovým kotlem včetně ohřevu vody. V celém domě bude kompletně podlahové vytápění. Energetický štítek (PENB) třídy C. Dům je napojený na kanalizaci, elektřinu a veřejný vodovod. Lokalita Srubec patří mezi nejvyhledávanější místa pro rodinné bydlení v blízkosti Českých Budějovic. V pěší vzdálenosti najdete školu, školku, dětské hřiště, obchod, restauraci i lékaře. Výborné spojení s městem zajišťuje městská hromadná doprava – linka č. 13. Srubec nabízí výjimečné zázemí pro rodiny s dětmi i pro ty, kdo hledají klidné místo k životu obklopené přírodou s veškerou občanskou vybaveností. Tento dům je ideální volbou moderního, designového a prakticky řešeného bydlení s příjemnou atmosférou a kvalitou bez kompromisů. Dokončení domu bude v říjnu 2025, to znamená, že stěhovat se můžete brzy. Rádi pomůžeme s výhodným financováním. Domluvte si prohlídku, těšíme se na jednání s Vámi. Pro komunikaci uvádějte evidenční číslo zakázky N114863.
Základní údaje
ID nemovitosti
N114863
Datum vložení
před 3 dny
Vlastnictví
soukromé
Stav nemovitosti
Novostavba
Plocha pozemku
174 m²
Plocha užitná
121 m²
Plocha zastavěná
82 m²
Energetická náročnost
C - Úsporná
