Prodej bytu 5+kk 130 m², Malá Homolka, Vimperk

7 490 000 Kč B
včetně DPH, včetně poplatků, včetně provize, včetně právního servisu

Nemovitost nabízí

 Bc. Šimon Jelínek

Bc. Šimon Jelínek

Bc. Šimon Jelínek
5. května 832, Dobřichovice

Popis nemovitosti

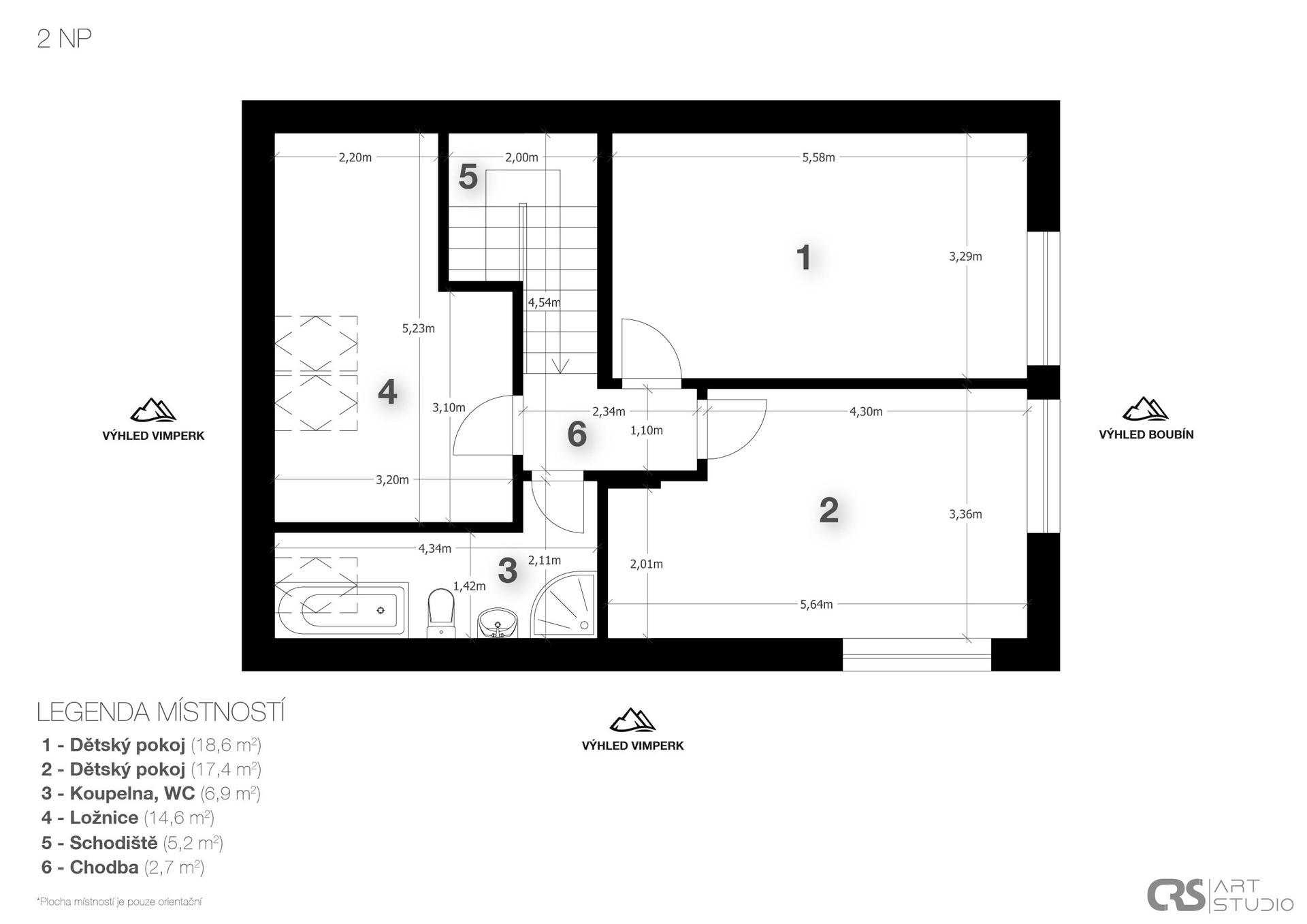
Prodej moderního dvoupodlažního bytu 5+kk (130 m2) s privátní zahradou (564 m2) a dvěma parkovacími místyHledáte bydlení, které spojuje komfort, moderní architekturu a dechberoucí výhledy? Pak je tento dvoupodlažní byt 5+kk (130 m2) trefou do černého! Nachází se v novostavbě moderního cihlového dvojdomu, dokončeného v roce 2024, který leží na okraji obce v klidné lokalitě obklopené přírodou.Proč si tento byt zamilujete?* Užitná plocha 130 m2 je ideální pro rodinný život.* Soukromá zahrada 564 m2 nabízí dostatek prostoru pro relaxaci a volnočasové aktivity.* Dvě parkovací stání (25 m2) mají hotovou přípravu na nabíjení elektromobilu.* Výhled na legendární šumavskou horu Boubín zdůrazňuje fakt, že máte přírodu na dosah.* Maximální soukromí zajišťuje protihluková izolace mezi jednotkami.* Úsporné a ekologické řešení máte zaručené díky tepelnému čerpadlu, retenční nádrži a přípravě na fotovoltaiku.* Dokončené jsou podlahy, koupelny a WC. Promyšlený design a pohodlíDvojdům je navržen s důrazem na komfort a soukromí. Obě jednotky mají vlastní přípojku na kanalizaci, vodoměr, podlahové vytápění v celém domě a přípravu pro fotovoltaiku. Tři pokoje nabízejí úchvatný výhled na Boubín a rohový pokoj s lomenými okny odhaluje navíc panorama města Vimperka.Lokalita – klid i dostupnostDům stojí na konci ulice, která přechází v louky a lesy, což zajišťuje nerušený klid. Vše potřebné k životu najdete ve Vimperku, kam se dostanete během pár minut. Přímo pod kopcem roste nové obchodní centrum. Na výlety nemusíte nutně vyrážet hlubokými lesy podél vod až k Boubínu. Stačí si vyšlápnout na 500 m vzdálenou Velkou Homolku, kde máte Vimperk jako dlani.Obklopeni hlubokými lesy a čistou přírodou tu začnete psát novou životní kapitolu.Neváhejte mě kontaktovat a domluvit si prohlídku!

Základní údaje

Dopravní spojení
Autobus, Vlak, Silnice
Elektřina
230 V
Kanalizace
Veřejná kanalizace
Zdroje vody
Veřejný vodovod
Způsoby vytápění
Ústřední - elektrické
Konstrukce
Zděná
Balkóny
Terasa
Druhy bytů
Mezonet
Inženýrské sítě
Internet
ID nemovitosti
270325
Datum vložení
před 7 dny
Vlastnictví
soukromé
Stav nemovitosti
Novostavba
Plocha užitná
130 m²
Energetická náročnost
B - Velmi úsporná

Poloha na mapě

Nemovitost nabízí

 Bc. Šimon Jelínek

Bc. Šimon Jelínek

Bc. Šimon Jelínek
5. května 832, Dobřichovice