Prodej obchodu 215 m², Klánovická, Praha

82 000 Kč za m² B
bez DPH

Nemovitost nabízí

Eliška Löwová

CENTRAL GROUP a.s.
Na strži 1702/65, Praha

Popis nemovitosti

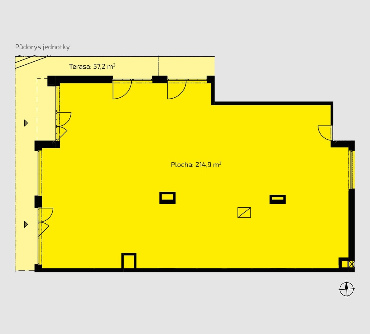
Největší rezidenční stavitel Central Group v přízemí svých velkých bytových projektů v Praze nabízí k prodeji komerční prostory ve stavu SHELL&CORE. Vhodné umístění v hlavních komunikačních zónách velkých bytových projektů dává garanci stabilní a solventní klientely. S dostavbou a zabydlováním jednotlivých velkých bytových lokalit je jistý stabilní růst hodnoty a ceny těchto komerčních prostorů. Komerční prostor B1, preferovaný provoz - prodej/služby/(gastro light)Vnitřní plocha 214,9 m2 Příslušenství - externí plocha 57,2 m2, 4x návštěvnické parkovací stáníTermín dokončení: 2028Cena za vnitřní plochu: 17.630.000,- Kč bez DPH (82.000,- Kč/m2 bez DPH)Celková cena včetně příslušenství: 19.965.400,- Kč bez DPHCeny komerčních prostorů jsou ve stavu SHELL&CORE a bez DPH. Jsou vázané na standardní platební kalendář s doplatkem 20 % ceny až po zprovoznění prostoru ze strany kupujícího, ale je možné dohodnout i odklad platby až 2 roky od předání. CENTRAL GROUP prodej každého komerčního prostoru vždy finálně odsouhlasuje až na základě záměrů, které mu zájemci o koupi předloží, a to nejvhodnější nabídce.Zájmem Central Group je, aby komerční prostory byly zprovozněny co nejdříve a garanci brzkého zprovoznění požaduje i po zájemcích o koupi. Předání prostorů ve stavu SHELL&CORE k vlastnímu dokončení kupujícím je většinou 6 měsíců před termínem dokončení nových bytů v lokalitě. V případě zájmu kupujícího je možné si u Central Group objednat i částečné nebo plné stavební dokončení komerčního prostoru.

Základní údaje

Cena nezahrnuje
DPH
Dopravní spojení
Autobus, Vlak, MHD, Silnice, Dálnice
Elektřina
230 V
Kanalizace
Veřejná kanalizace
Konstrukce
Skeletová
Inženýrské sítě
Telefon, Internet
ID nemovitosti
207-B1-996
Datum vložení
před měsícem
Stav nemovitosti
Rozestavěný
Plocha pozemku
57 m²
Plocha užitná
215 m²
Energetická náročnost
B - Velmi úsporná

Poloha na mapě

Nemovitost nabízí

Eliška Löwová

CENTRAL GROUP a.s.
Na strži 1702/65, Praha