Prodej obchodu 34 m², Nusle, Praha
7 000 000 Kč
G
Popis nemovitosti
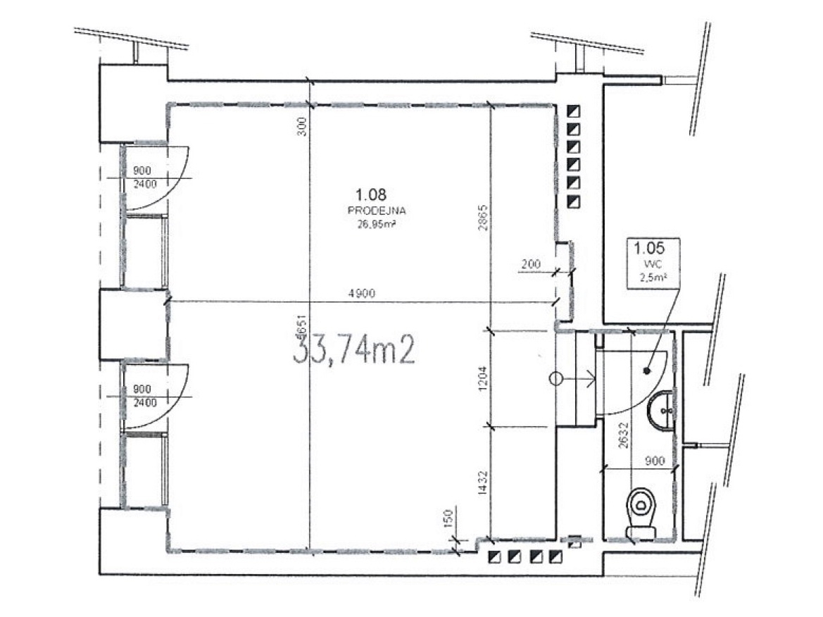
Nabízíme k prodeji kompletně zrekonstruovaný přízemní obchodní prostor o výměře 33,74 m² s dvěma samostatnými vstupy z ulice.
Prostor disponuje velkými prosklenými výlohami, které zajišťují maximální viditelnost, a jsou opatřeny uzamykatelnými bezpečnostními roletami.
Interiér má světlou výšku 3,4 m, což umocňuje pocit prostornosti a vzdušnosti.
Atraktivní lokalita
Obchod se nachází na frekventované ulici Jaromírova v městské části Nusle (Praha 2), tedy v širším centru hlavního města.
Tato adresa zaručuje výbornou viditelnost a stálý pěší provoz, neboť v okolí je hustá rezidenční zástavba a fungují zde další obchody a služby.
Jen minutu chůze od domu je tramvajová zastávka s přímým spojením do centra.
V bezprostřední blízkosti leží oblíbený park Folimanka – vyhledávaná oddechová zóna s hřišti a sportovišti, která denně přiláká mnoho rodin, sportovců i ostatních obyvatel z okolí. Tato stabilní spádová klientela spolu s lokálními rezidenty zajišťuje dostatek potenciálních zákazníků pro jakékoli podnikání.
Pronajaté – ideální pro investici
Prostor je aktuálně pronajat zavedenému kosmetickému studiu, přičemž prodej se realizuje včetně tohoto nájemního vztahu. Nový vlastník tedy získá nemovitost s prověřeným dlouhodobým nájemcem a pravidelným příjmem, což z této nabídky činí velmi atraktivní investici. Od prvního dne tak bude nový majitel inkasovat stabilní výnos, aniž by musel řešit hledání nájemce.
Široké možnosti využití
Díky praktickému dispozičnímu řešení a dvěma vstupům lze prostor snadno rozdělit na klientskou a zázemní část. Vhodný je proto pro různé typy podnikání: skvěle poslouží jako kosmetické studio nebo nehtový salon, kadeřnictví či barber shop, masážní nebo tetovací studio, butik, showroom, ale stejně tak i jako reprezentativní kancelář firmy.
Nemovitost je v osobním vlastnictví a lze ji financovat hypotékou – rádi vám pomůžeme zajistit výhodný úvěr díky spolupráci se všemi bankami na trhu.
Jednotka je bez jakýchkoli právních vad či závazků.
Převod vlastnického práva zajistíme formou advokátní nebo notářské úschovy dle výběru kupujícího, aby celý proces proběhl maximálně bezpečně.
Pokud hledáte reprezentativní komerční prostor či stabilní investici v širším centru Prahy, neváhejte nás kontaktovat pro sjednání prohlídky.
Základní údaje
Dopravní spojení
Autobus, Vlak, MHD, Silnice
Elektřina
230 V
Kanalizace
Veřejná kanalizace
Zdroje vody
Veřejný vodovod
Konstrukce
Jiná
Inženýrské sítě
Internet
ID nemovitosti
27912
Datum vložení
před 9 hodinami
Stav nemovitosti
Bezvadný
Plocha pozemku
34 m²
Plocha užitná
34 m²
Energetická náročnost
G - Mimořádně nehospodárná
