Prodej ostatního komerčního prostoru 400 m², Nádražní, Mladá Boleslav

Cena na dotaz G

Nemovitost nabízí

Monika Jenišová

RK BOHEMIA s.r.o.
Náměstí 14. října 1307/2, Praha

Popis nemovitosti

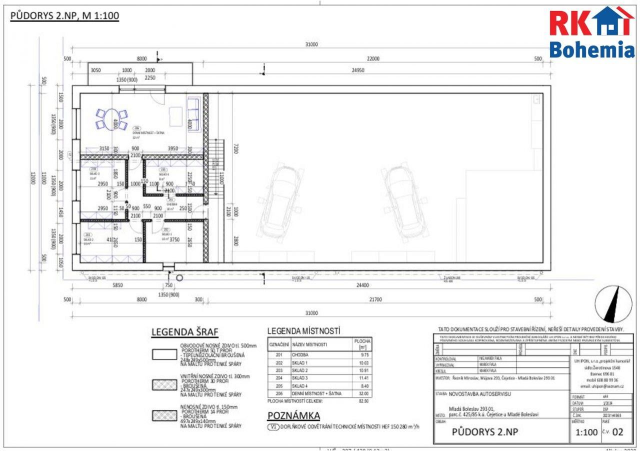
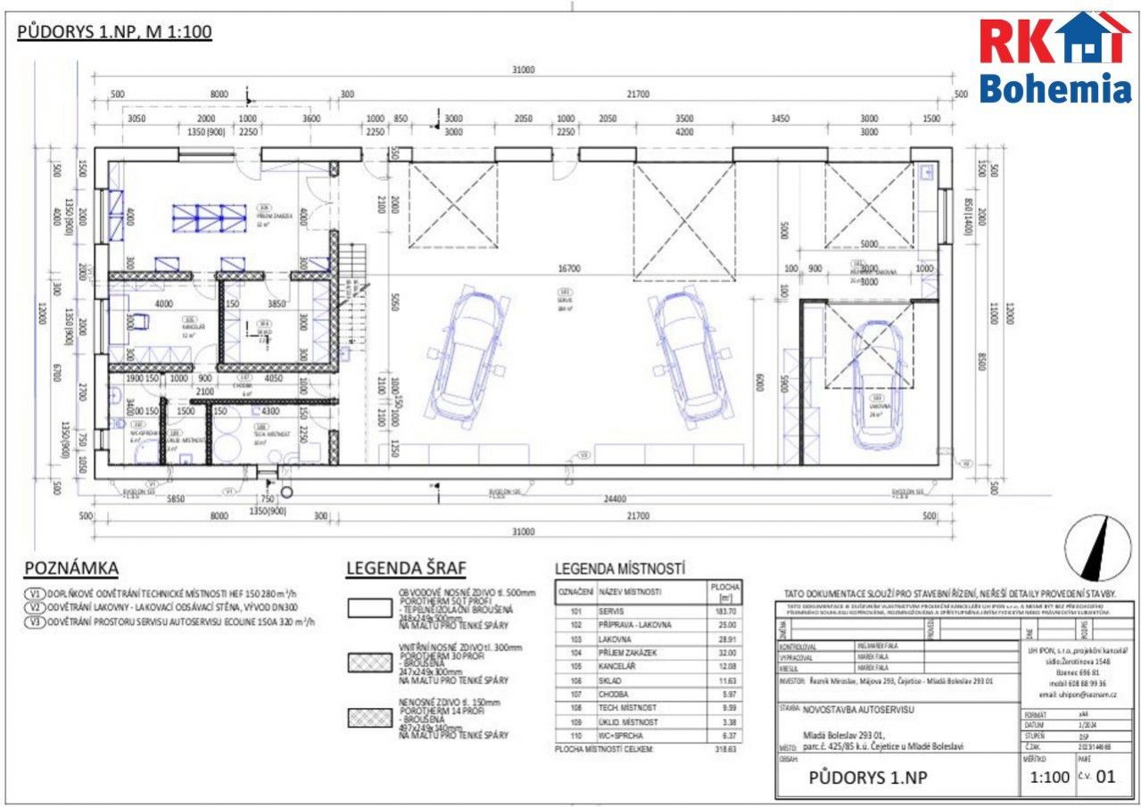
Prodej komerčního objektu projekt servisu s pozemkem 660 m, Mladá Boleslav Čejetičky, Nádražní ulice Nabízíme ke koupi komerční projekt servisu se zázemím ve dvou nadzemních podlažích, situovaný na komerčním pozemku o výměře 660 m. Součástí prodeje je kompletní projektová dokumentace a platné stavební povolení. Objekt je navržen jako moderní servisní centrum se zázemím, přesné dispoziční řešení je k dispozici dle přiložených podkladů. Tento projekt představuje ideální investiční příležitost pro podnikání v oblasti služeb, autoservisu či jiné komerční činnosti. Stavební povolení vydáno. Inženýrské sítě, vodovod, elektřina, kanalizace, přístupová cesta vybudovány. Výborná dostupnost. Možnost zajištění financování. Financování vám rádi pomůžeme zajistit. Pro více informací a sjednání prohlídky mě neváhejte kontaktovat. Na osobní setkání se těší vaše makléřka.

Základní údaje

Dopravní spojení
Autobus, Vlak, MHD, Dálnice
Elektřina
230 V, 400 V
Kanalizace
Veřejná kanalizace
ID nemovitosti
3017
Datum vložení
před 11 dny
Stav nemovitosti
Projekt
Plocha celková
315 m²
Plocha pozemku
660 m²
Plocha užitná
400 m²
Plocha zastavěná
315 m²
Energetická náročnost
G - Mimořádně nehospodárná

Poloha na mapě

Nemovitost nabízí

Monika Jenišová

RK BOHEMIA s.r.o.
Náměstí 14. října 1307/2, Praha