Prodej skladu 1 220 m², Skorošice

11 980 000 Kč G
včetně provize a právního servisu spojeného s převodem nemovitosti

Nemovitost nabízí

 Jiří Samek

Jiří Samek

RE/MAX Future
U Koruny 1742/16, Hradec Králové

Popis nemovitosti

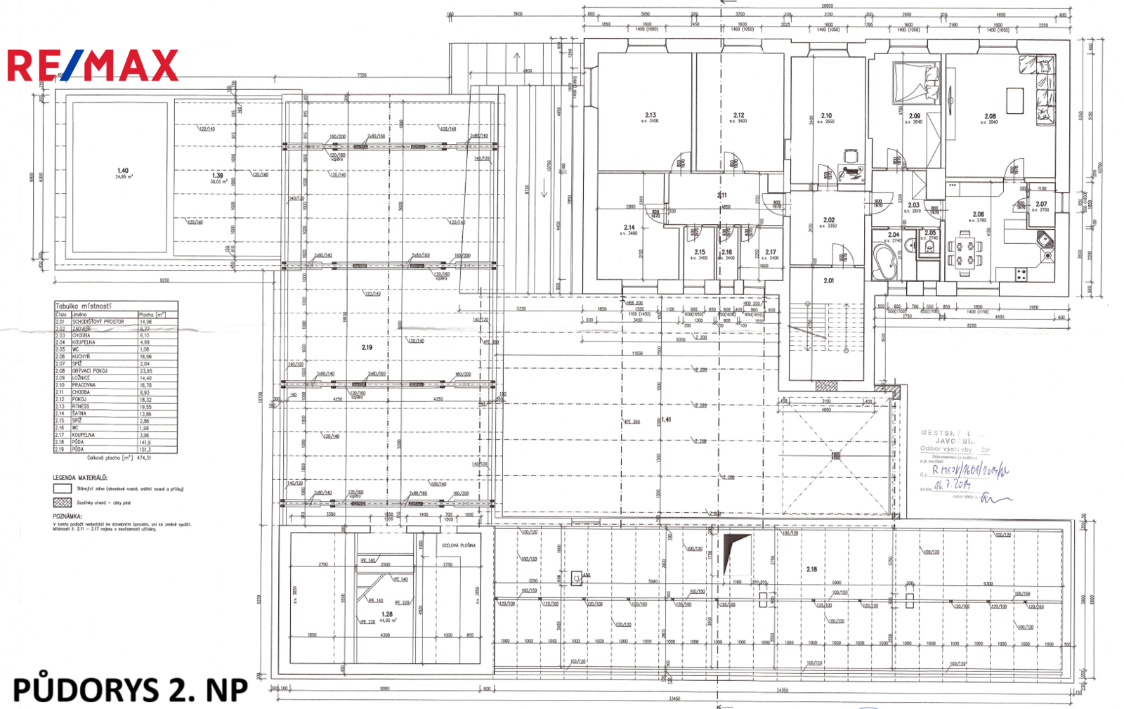
Ve výhradním zastoupení společností RE/MAX Future, Vám tímto nabízíme ke koupi výrobně skladovací areál se 2 bytovými jednotkami a pozemkem o celkové výměře včetně zastavěných ploch 2 442 m², který díky své poloze a velikosti nabízí širokou škálu možného využití. Dvoupodlažní budova s celkovou užitnou plochou 1 220 m², je aktuálně v 1. nadzemním podlaží dispozičně rozdělena na prostory výrobní, skladové a administrativní s odpovídajícím sociálním zázemím. Dominantním prostorem je 148 m² veliká dílna s výsuvnými vraty, která byla využívána pro servisování nákladních automobilů. K dispozici jsou rovněž 2 dvojgaráže. Druhé nadzemní podlaží, do kterého se dostanete pohodlně skrze široké schodiště, nabízí 2 bytové jednotky. První byt o dispozici 2+1 a výměře 70 m² je rozdělen na obývací pokoj, ložnici, kuchyň s jídelnou, spíž, koupelnu s vanou a sprchovým koutem, toaletu, chodbu. Byt je připraven k užívání. Druhý byt o dispozici 3+1 a výměře 87 m² nabízí 3 samostatné pokoje, přípravu pro kuchyň, spíž, přípravu pro koupelnu, přípravu pro toaletu, chodbu. Další prostory s možností budoucího užívání představuje prostorná půda a sklep. Areál se nachází u silnice I. třídy I/60, která vede z Jeseníku přes Žulovou a Javorník až do Polska. Jedná se o výborně dopravně dostupnou lokalitu. Vzhledem k užitné ploše, velikosti pozemku a celkovému objemu budovy, tuto nabídku za naši kancelář hodnotíme jako vysoce zajímavou. V případě zájmu o bližší informace mě prosím kontaktujte pomocí e-mailu nebo telefonicky. Jiří Samek - výhradní prodejce

Základní údaje

Elektřina
230 V, 400 V
Kanalizace
Veřejná kanalizace
Zdroje vody
Veřejný vodovod
Konstrukce
Jiná
ID nemovitosti
425153
Datum vložení
před 8 dny
Stav nemovitosti
Dobrý
Plocha pozemku
1 220 m²
Plocha užitná
1 220 m²
Plocha zastavěná
869 m²
Energetická náročnost
G - Mimořádně nehospodárná

Poloha na mapě

Nemovitost nabízí

 Jiří Samek

Jiří Samek

RE/MAX Future
U Koruny 1742/16, Hradec Králové