Prodej ostatní nemovitosti 297 m², Svárovská, Praha
23 900 000 Kč
G
Popis nemovitosti
Nabízíme k prodeji prostorný vícegenerační rodinný dům v klidné a vyhledávané části Prahy 9 – Kyje.
Nemovitost o celkové užitné ploše 298 m² nabízí dvě samostatné bytové jednotky typu 3+1, a je tak ideální pro vícegenerační bydlení nebo investici s možností pronájmu jedné části.
Dům je ve velmi dobrém technickém stavu. Byt v 2. nadzemním podlaží prošel kompletní rekonstrukcí – nové rozvody, koupelna, kuchyně i podlahy.
Přízemní jednotka je udržovaná a plně obyvatelná, s možností modernizace dle představ nového majitele.
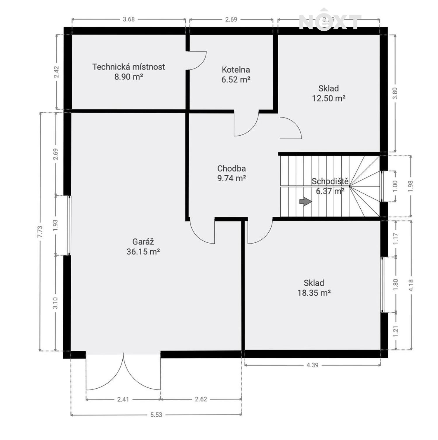
Součástí domu je garáž, dílna a skladové prostory, které ocení jak kutilové, tak podnikatelé.
Na pozemku se nachází pěkná zahrada s dostatkem soukromí, ideální pro relaxaci či rodinné posezení.
Dům je napojen na veškeré inženýrské sítě a díky dispozičnímu řešení je možné jednoduše rozdělit jej na dvě samostatné bytové jednotky se samostatnými vstupy.
Klidná lokalita s výbornou dopravní dostupností – metro B Rajská zahrada či Hloubětín, autobusová zastávka v docházkové vzdálenosti cca 8minut.
V okolí je kompletní občanská vybavenost – školy, školky, obchody, služby, parky i cyklostezky kolem Kyjského rybníka.
Více informací na uvedené infolince a případně na osobní schůzce. Pouze u nás vám zajistíme moderní financování až na 30 let, bez ohledu na věk a prokazování příjmů, či nutnosti předkládat daňové přiznání. Pro komunikaci uvádějte evidenční číslo zakázky N114851.
Základní údaje
ID nemovitosti
N114851
Datum vložení
včera
Vlastnictví
soukromé
Stav nemovitosti
Dobrý
Plocha pozemku
618 m²
Plocha užitná
297 m²
Plocha zastavěná
147 m²
Energetická náročnost
G - Mimořádně nehospodárná
