Prodej stavební parcely 920 m², Jirkov, Železný Brod
2 700 000 Kč
2 935 Kč za m²
Popis nemovitosti
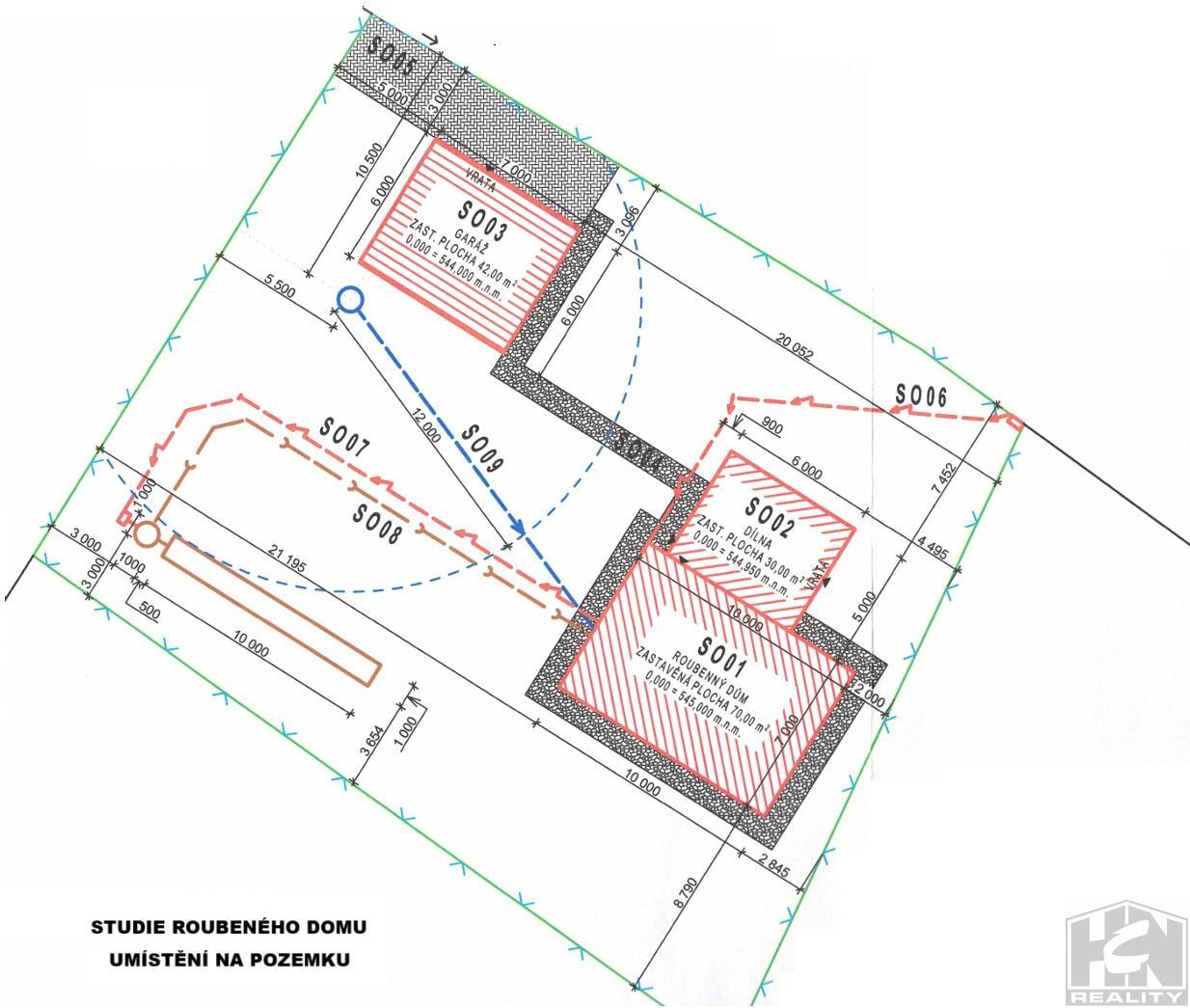
Exkluzivní nabídka stavebního pozemku v malebné lokalitě Jirkov u Železného Brodu o velikosti 920 m2, který je ideální pro výstavbu vašeho vysněného roubeného domu.
Na pozemku se nachází přípojka elektrické energie a je zde navrženo vybudování vrtané studny jako zdroje vody. Kanalizace je plánována formou čističky odpadních vod s vsakem přímo na pozemku, což zajišťuje komfortní a ekologické bydlení.
Pozemek je v platném územním plánu MĚSTA ŽELEZNÝ BROD v lokalitě Z112 - BM PLOCHY BYDLENÍ MĚSTSKÉ INDIVIDUÁLNÍ.
Slunné místo s nádherným výhledem na pohoří Kozákov poskytuje ideální podmínky pro relaxaci a odpočinek. V blízkosti pozemku se nachází tenisové kurty, které potěší sportovně založené obyvatele.
Výhodou této lokality je také dobrá dopravní dostupnost do města Železný Brod, což zajišťuje snadný přístup k veškeré občanské vybavenosti a službám. Nezmeškejte tuto jedinečnou příležitost a investujte do svého budoucího bydlení v krásné přírodě!
Základní údaje
Příjezdy
Asfalt
ID nemovitosti
109
Datum vložení
28. září 2025
Stav nemovitosti
Dobrý
Plocha pozemku
920 m²
