Prodej chalupy 90 m², Polní Chrčice
3 990 000 Kč
G
Cena včetně provize a právních služeb
Popis nemovitosti
Toužíte po místě, kde budete mít naprostý klid, dostatek prostoru a zároveň výbornou dostupnost? Nabízíme k prodeji kouzelnou chalupu v obci Polní Chrčice, ideální pro rekreaci
Hlavní přednosti nemovitosti
Klidná lokalita s minimem provozu a příjemná venkovská atmosféra.
Skvělá dostupnost - pouze 3 km od dálnice D11, dojezd 35 minut na Prahu - Černý Most i Hradec Králové
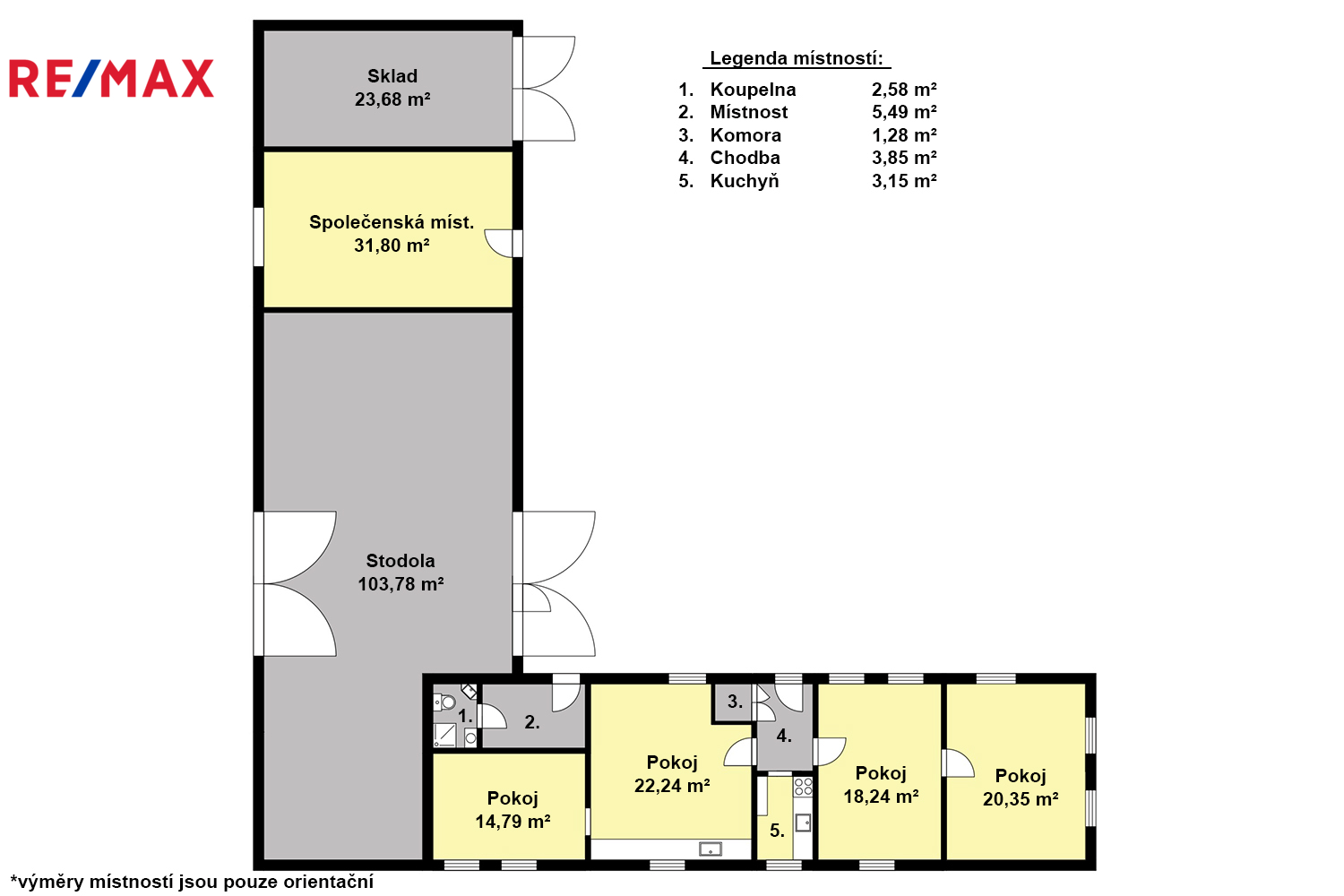
Velká společenská místnost pro rodinná setkání, víkendové hosty i večery s přáteli
Prostorná stodola vhodná jako dílna, garáž, sklad nebo k rekreační přestavbě
Zahradní posezení - klidná zóna pro odpočinek u kávy i letní grilování
Bazén pro osvěžení v horkých dnech
Venkovní krb - ideální pro večerní pohodu a rodinné grilovačky
Udržovaná zahrada nabízí soukromí i prostor pro vaše další nápady
Tato chalupa je skvělou volbou pro ty, kteří chtějí uniknout z města, ale zároveň mít vše rychle po ruce. Kombinace přátelské vesnice, dobré dopravní dostupnosti a širokých možností využití z ní dělá výjimečnou nabídku.
První prohlídky budou možné od 5.-7.12.2025. Neváhejte si zarezervovat svůj termín prohlídky.
Děkuji.
Základní údaje
Dopravní spojení
Autobus, Silnice, Dálnice
Elektřina
400 V
Kanalizace
Žumpa, septik
Konstrukce
Jiná
ID nemovitosti
427437
Datum vložení
včera
Stav nemovitosti
K rekonstrukci
Plocha celková
739 m²
Plocha pozemku
739 m²
Plocha užitná
90 m²
Plocha zastavěná
319 m²
Energetická náročnost
G - Mimořádně nehospodárná
