Prodej na klíč 97 m², Hradec Králové
3 249 000 Kč
B
včetně DPH 12%
Popis nemovitosti
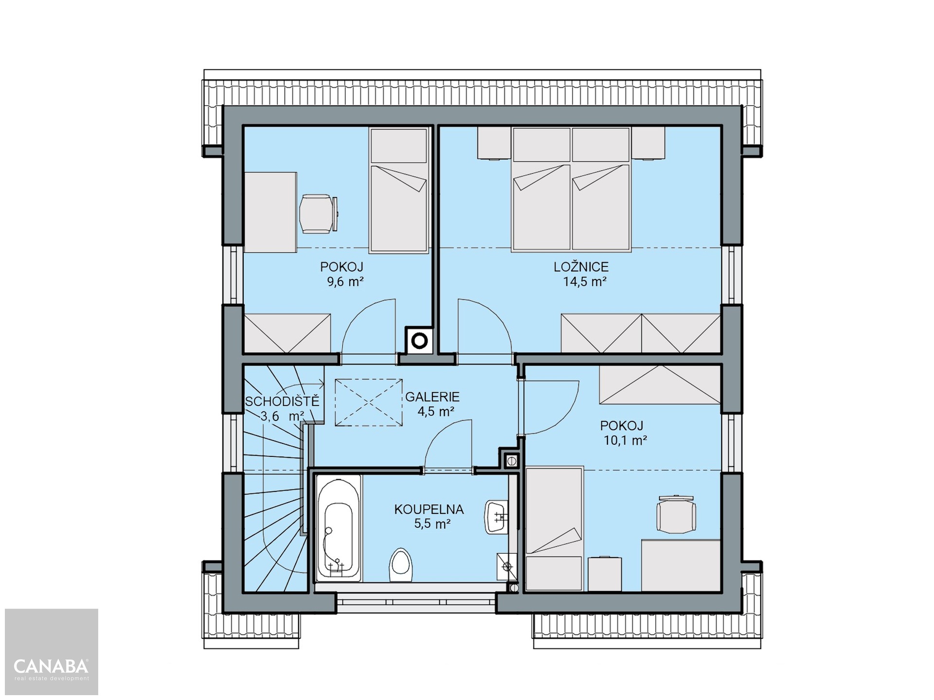
Nízkoenergetický rodinný dům UNO je určen pro pohodlný život 4 členné rodiny. Dispozice 4+1 nabízí podlahovou plochu 96,7 m2. Bohatý vnitřní prostor zahrnuje v přízemí obývací pokoj s prakticky odděleným kuchyňským koutem a v patře ložnici a 2 dětské pokoje. Součástí rodinného domu je technická místnost, samostatné WC a samostatná koupelna. Dům bude za uvedenou cenu kompletně dokončen a vybaven (včetně krbového komínu) a připraven k okamžitému nastěhování. Vnější i vnitřní provedení domu provedeme dle Vašeho individuálního výběru (podl. krytiny, obklady, dlažby, sanitární keramika, vnější i vnitřní dveře a okna, barva a provedení fasády a střešní krytiny apod.) Dům možno doplnit terasou, pergolou, garážovým stáním nebo garáží. V ceně domu není zahrnuta spodní stavba. Najdeme vám nebo prověříme pozemek pro výstavbu. Zajistíme nejvýhodnější hypotéku.Výstavba na klíč za pouhých 4 – 5 měsíců. Unikátní masivní technologie se zárukou 50 let na konstrukční systém. Záruka nejnižší ceny a jistota 100 % kvality – za 35 let potvrzeno více než 8500 domy v ČR a Německu.Přijeďte se podívat do Centra vzorových domů, navštivte náš nový vzorový dům Uno a projděte si dům svých snů na vlastní oči. Těšíme se na Vaši návštěvu.
Základní údaje
Konstrukce
Zděná
ID nemovitosti
01339-xxx-2154024378
Datum vložení
26. února 2025
Plocha pozemku
1 m²
Plocha užitná
97 m²
Energetická náročnost
B - Velmi úsporná
