Prodej na klíč 120 m², Liberec

11 990 000 Kč B
Majitel si vyhrazuje právo výběru nájemce na záladě nejvýhodnější nabídky. V případě více zájemců může RK využít pro výběr kupujícího formu aukce., včetně provize RK

Nemovitost nabízí

 Michal Dörfl

Michal Dörfl

M&M reality holding a.s.
Krakovská 583/9, Praha

Popis nemovitosti

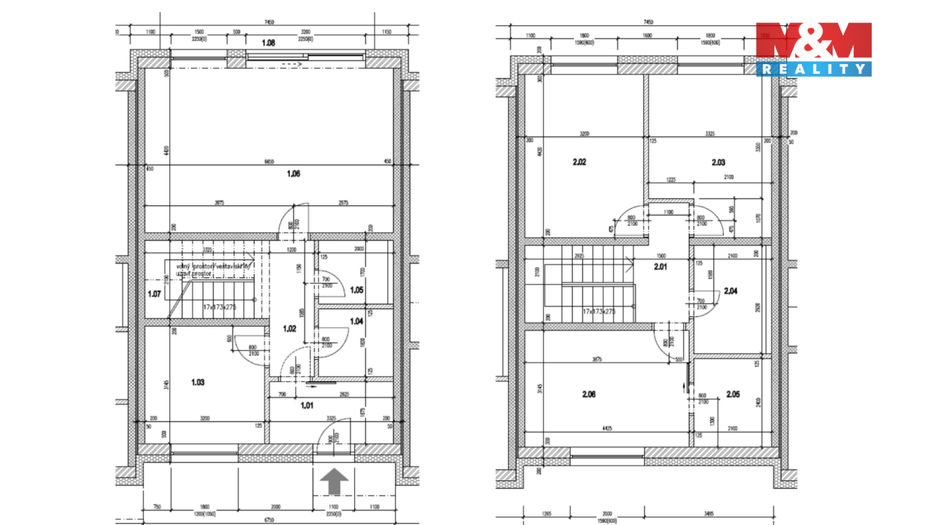
Nabízíme k prodeji moderní novostavbu řadového domu v klidné části Liberce, ul. Bajkalská, katastrální území Janův Důl. Tato nízkoenergetická nemovitost s dispozicí 4+kk a užitnou plochou 120 m² se rozprostírá ve dvou nadzemních podlažích. Dům je součástí uzavřeného rezortu pěti řadových domů, kde je kladen důraz na použití moderních materiálů. Výhodou je vytápění tepelným čerpadlem a horkovodní podlahové vytápění, trojskla v oknech a příprava na krbovou vložku. V ceně jsou zahrnuty dvě parkovací stání. Plocha pozemku činí 242 m². Nabízíme možnost dokončení na klíč dle individuálních přání, včetně změn dispozice. Zahájení výstavby je plánováno na březen 2026, dokončení na květen 2027. Pro více informací kontaktujte makléře.

Základní údaje

Dopravní spojení
Autobus, Vlak
Elektřina
230 V
Kanalizace
Veřejná kanalizace
Zdroje vody
Veřejný vodovod
Konstrukce
Zděná
Parkování
Parkování na ulici
Příjezdy
Zpevněný
Wc
Splachovací
ID nemovitosti
921831
Datum vložení
před 4 dny
Vlastnictví
soukromé
Plocha pozemku
242 m²
Plocha užitná
120 m²
Energetická náročnost
B - Velmi úsporná

Poloha na mapě

Nemovitost nabízí

 Michal Dörfl

Michal Dörfl

M&M reality holding a.s.
Krakovská 583/9, Praha