Prodej rodinného domu 97 m², Čilec
6 723 000 Kč
B
včetně DPH
Popis nemovitosti
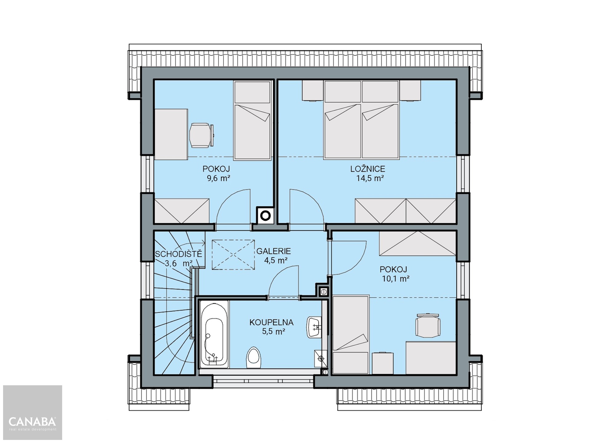
Prodám rodinný dům Uno na pozemku s rozlohou 772 m2 v lokalitě Nymburk Čilec v ceně 6.923.000 Kč.Jedná se o novou lokalitu s vodovodem, tlakovou kanalizací, komunikacemi ze zámkové dlažby, s veřejným osvětlením, sjezdy na pozemky, připojením na el. energii (NN) a optickou datovou sítí.Pozemky se nachází v neprůjezdné obytné zóně navazující na stávající zástavbu obce. Jsou ideální pro lidi toužící po klidu. Dům bude za uvedenou cenu kompletně dokončen a vybaven (včetně krbového komínu) a připraven k okamžitému nastěhování. Vnější i vnitřní provedení domu provedeme dle Vašeho individuálního výběru (podlahové krytiny, obklady, dlažby, sanitární keramika, vnější i vnitřní dveře a okna, barva a provedení fasády a střešní krytiny apod.).Dům je určen pro pohodlný život 4 členné rodiny. Bohatý vnitřní prostor zahrnuje v přízemí obývací pokoj s prakticky odděleným kuchyňským koutem, v patře ložnici a 2 dětské pokoje. Součástí rodinného domu je i samostatná toaleta a samostatná koupelna.V uvedené ceně není zahrnuta spodní stavba.Služby a občanská vybavenost jsou ve městech Nymburk, Milovice, Lysá nad Labem a Benátky nad Jizerou, kam vede přímé spojení autobusem PID. Nedaleká dálnice D10 zajišťuje velmi dobrou dopravní dostupnost do Prahy (35min) a Mladé Boleslavi (30min).Doba výstavby: 3 – 4 měsíce.
Základní údaje
Konstrukce
Zděná
ID nemovitosti
1448
Datum vložení
před 10 dny
Plocha pozemku
772 m²
Plocha užitná
97 m²
Plocha zastavěná
59 m²
Energetická náročnost
B - Velmi úsporná
