Prodej rodinného domu 223 m², Na Schůdkách, Hořovice

9 500 000 Kč G
včetně provize a právních služeb

Nemovitost nabízí

Ing. Markéta Soukupová

QARA s.r.o.
Šafaříkova 201/17, Praha

Popis nemovitosti

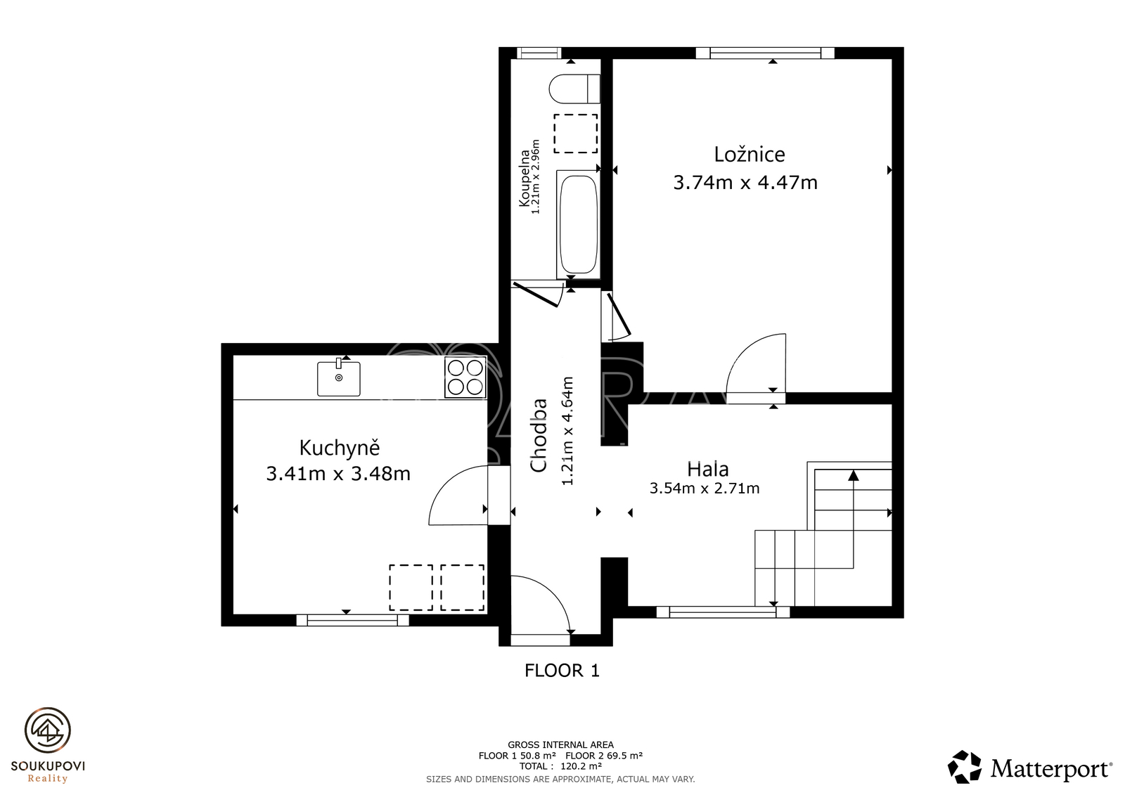
Hledáte prostor pro dvougenerační bydlení nebo zajímavou investiční příležitost? V klidné ulici Na Schůdkách v Hořovicích, jen pár minut od centra města, na vás čeká dvojdům se dvěma samostatnými bytovými jednotkami a velkým potenciálem. Každá jednotka má vlastní vchod a dispozici 4+1 – jedna nabízí užitnou plochu přes 104 m², druhá 119 m². Dům je navíc částečně podsklepený, což přináší další úložný prostor. Na začátku 90. let zde proběhla nástavba obou částí domu – byl zhotoven nový železobetonový věnec, střešní konstrukce i krytina (vlnitý eternit). Izolace podkroví skelnou vatou. Nástavba provedena z plynosilikátových tvárnic 40 cm tl. V části domu byla vyměněna okna za plastová s dvojskly v části domu jsou dřevěná špaletová. Rozměr stavby je 8,6 x 16 m. Nemovitost je napojena na všechny inženýrské sítě, má dva elektroměry, dva plynoměry a každá část vlastní vytápění. Jedna bytová jednotka je připravena k okamžitému bydlení s možností postupné modernizace, druhá čeká na rekonstrukci podle vašich představ – ideální kombinace pro ty, kdo chtějí spojit vlastní bydlení s investicí případně pro investory se zajímavým potenciálem. Vytápění ve spodní části domu zajišťuje nový úsporný plynový kondenzační kotel se zásobníkem, což znamená nízké provozní náklady. Na pozemku o rozloze 252 m² najdete útulnou zahradu s venkovním posezením a grilem – ideální místo pro odpočinek po práci nebo letní grilování s přáteli. Parkování je možné v blízkosti domu na obecním pozemku a další možnosti jsou pro rezidenty v modré zóně za drobný roční poplatek 200 Kč na automobil. Současné měsíční náklady v obývané polovině domu jsou velmi příznivé v celkové výši 5.000 Kč (zahrnují elektřinu, plyn, vodné/stočné, internet). Hořovice nabízejí kompletní občanskou vybavenost – školky, školy, obchody, nemocnici, restaurace i sportoviště. Dopravní dostupnost je skvělá – vlak, autobus i dálnice D5 vás rychle spojí s Prahou nebo Plzní. A pokud milujete přírodu, brdské lesy v okolí jsou jako stvořené pro procházky, cyklistiku i výlety s rodinou. Tento dům je ideální volbou pro rodiny, investory i ty, kteří hledají kombinaci bydlení a pronájmu. Zavolejte nám – možná právě tady začíná váš nový příběh.

Základní údaje

Dopravní spojení
Autobus, Vlak, MHD, Silnice, Dálnice
Elektřina
230 V
Kanalizace
Veřejná kanalizace
Zdroje vody
Veřejný vodovod
Konstrukce
Jiná
ID nemovitosti
17553
Datum vložení
9. října 2025
Stav nemovitosti
Bezvadný
Plocha pozemku
252 m²
Plocha užitná
223 m²
Energetická náročnost
G - Mimořádně nehospodárná

Poloha na mapě

Nemovitost nabízí

Ing. Markéta Soukupová

QARA s.r.o.
Šafaříkova 201/17, Praha