Prodej rodinného domu 256 m², Vlčkovická, Hradec Králové
15 500 000 Kč
D
cena je včetně právního servisu a provize realitní kanceláři
Popis nemovitosti
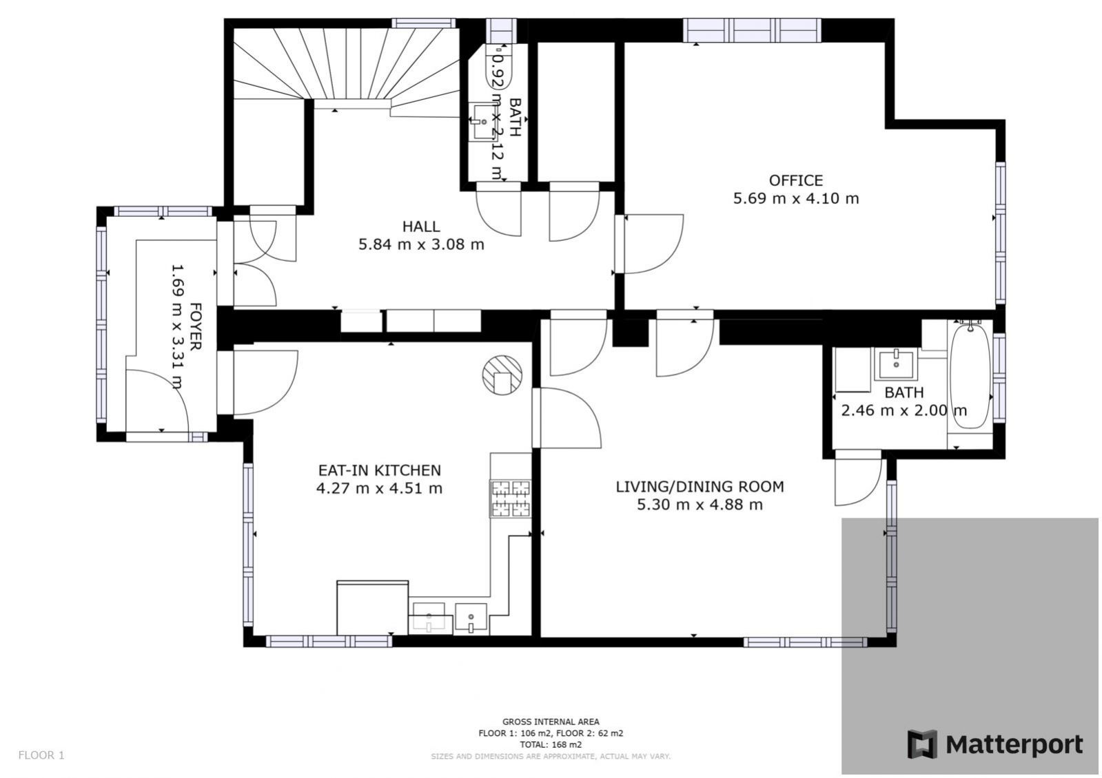
K prodeji rodinný dům s rozlehlou zahradou v západní části Hradce Králové, v místní části Plačice, v ulici Vlčkovická. Přední část pozemku nabízí zpevněnou příjezdovou plochu s možností parkování, navazující garáž a zahradní dům. Zahrada o celkové výměře 2522 je rozdělena na relaxační část, sad a les. Dům je celopodsklepený, v suterénu o výměře 98 m2 najdeme kotelnu, skladovací a technické prostory. Přízemí o výměře 106 m2 je plně obytné a jsou zde tři samostatné pokoje, koupelna, WC, spíž a prostorná hala se vstupní chodbou. V patře o výměře 62 m2 jsou dva samostatné pokoje, balkon, terasa a malá půda, kam je přivedena voda a odpady pro budoucí druhou koupelnu. Dům lze ihned užívat, přestože se předpokládá celková rekonstrukce (rozvody elektřiny, koupelny) a modernizace vybavení. Po rekonstrukci je fasáda domu, střecha a celkově je nemovitost dlouhodobě pečlivě a s láskou opečovávána. Velkou předností jsou velká okna, světlo a prostorné místnosti, výjimečná je výměra zahrady a možnosti jejího využití (lze řešit rozparcelování a následnou výstavbu dvou dalších domů na pozemcích cca 950 m2) . Plačice jsou okrajovou částí Hradce Králové, s ideálním přístupem na D11 nebo do centra HK, které je dostupné skrze MHD. Poblíž se nachází vodní plocha Písník Dubina.
Základní údaje
Elektřina
230 V, 400 V
Kanalizace
Žumpa, septik
Parkování
Garáž, Parkování na ulici
ID nemovitosti
613
Datum vložení
před 5 dny
Stav nemovitosti
Dobrý
Plocha celková
447 m²
Plocha pozemku
2 969 m²
Plocha obytná
256 m²
Plocha užitná
256 m²
Plocha zastavěná
447 m²
Energetická náročnost
D - Méně úsporná
