Prodej rodinného domu 200 m², Jungmannovo náměstí, Kutná Hora
6 700 000 Kč
G
Cena včetně provize a právních služeb
Popis nemovitosti
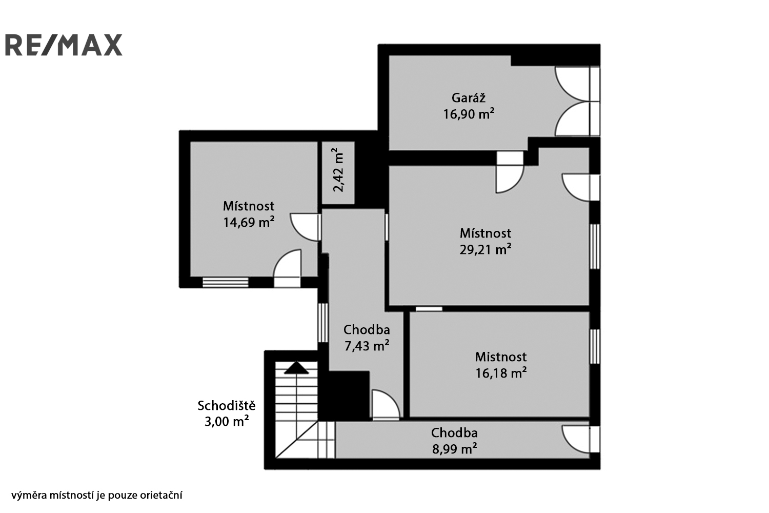
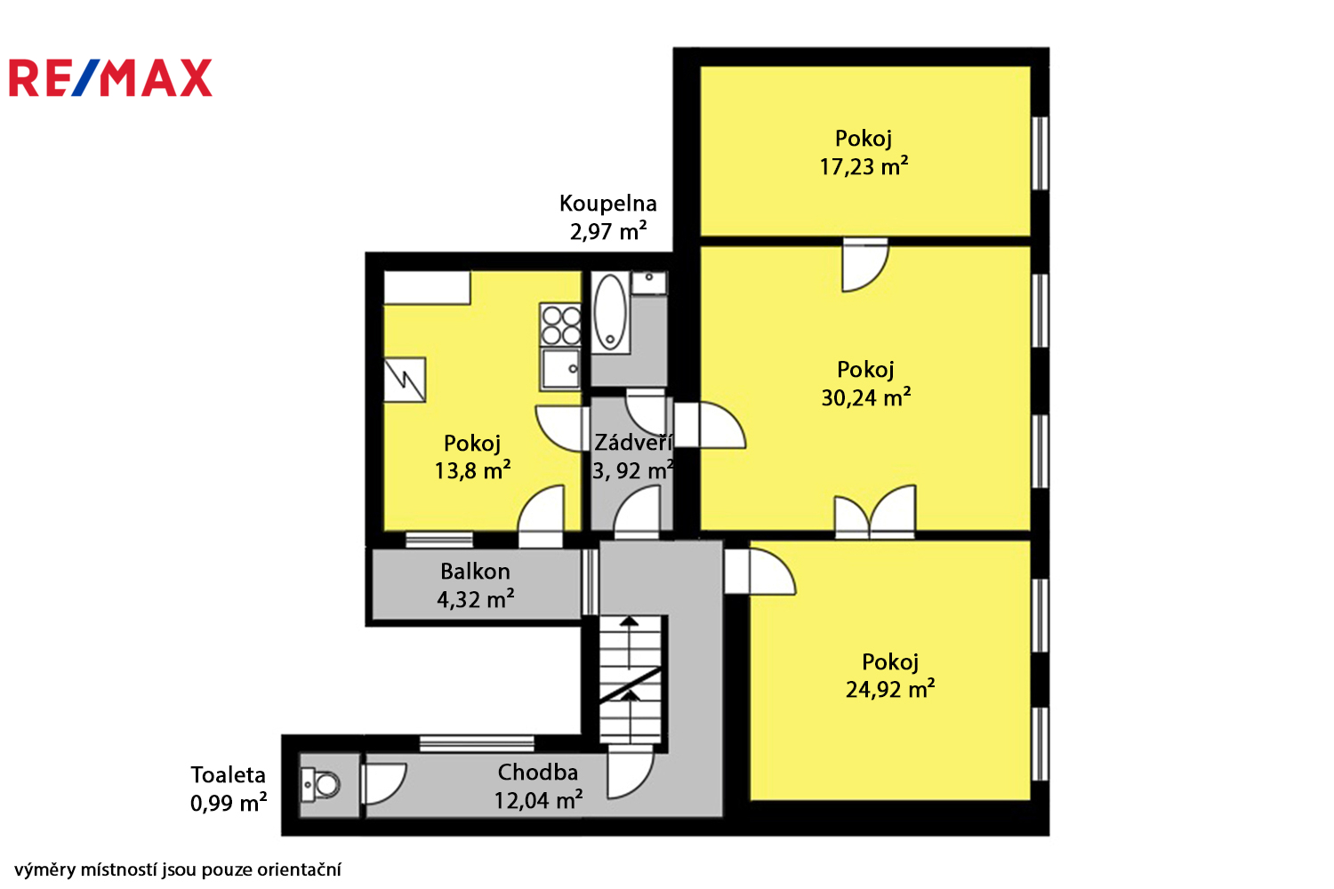
Dovolujeme si Vám nabídnout prodej rodinného domu s nezaměnitelnou atmosférou v samotném srdci Kutné Hory na adrese Jungmannovo náměstí. Řadový dům z roku 1870, postavený z kamene a cihel, se nachází v památkové rezervaci a nabízí jedinečnou možnost citlivé rekonstrukce s respektem k historii. Dům je z části podsklepený, má dvě nadzemní podlaží a půdu. Uvedené výměry jsou orientační. V 1. NP (přízemí, výměra 95,82 m2) se nachází nebytové prostory tvořené čtyřmi místnostmi, vhodné například pro ateliér, dílnu, galerii či menší obchod, a dále vstup na dvorek. Na dvorku je samostatná místnost (4,10 m2) a venkovní WC (1,2 m2). Ve 2. NP (1. nadzemní podlaží/obytné, užitná plocha 106,11 m2 + balkon 4,32 m2) je bytová jednotka 3+1, koupelna a samostatné WC. Ohřev vody zajišťuje karma a vytápění WAW + radiátory. Ve 3. nadzemní úrovni (půda, plocha 104,25 m2) je krov o výšce cca 175 cm, půda může posloužit jako úložný prostor či případná rezerva pro budoucí rozšíření (dle povolení památkové péče). V letech 1992/1993 proběhla rekonstrukce stropů a kanalizace; ve dvou místnostech jsou hurdiskové stropy, ostatní stropy dřevěné. Okna jsou dřevěná, přibližně 40 let stará, jednosklo. Podlahy v přízemí jsou betonové. Plyn je do domu zaveden, plynový kotel je cca 18 let starý, v patře je umístěna expanzní nádoba. Komín byl před osmi lety vyvložkován ve 2. NP pro krbová kamna (v 1. NP vyvložkování není). Elektřina je v hliníku 220/380 V, rozvody vody jsou původní (ne v plastu). Dům svým charakterem láká milovníky staré Kutné Hory a je ideální pro kombinaci bydlení a podnikání – nebytový prostor v přízemí nabízí široké možnosti využití. Počítejte s modernizací oken, elektroinstalace, rozvodů vody a případně systému vytápění; všechny zásahy je třeba řešit s ohledem na požadavky památkové péče. Lokalita zajišťuje bezprostřední dostupnost památek, kaváren, restaurací, škol i služeb, přičemž dům leží přibližně 5 minut chůze od vlakového nádraží – po cestě z nádraží směrem na náměstí. Zároveň je zde pohodlné spojení v rámci města i směrem na Prahu a Čáslav. Pokud hledáte dům s příběhem, který si přetvoříte dle svých představ, a chcete žít i tvořit v jedné z nejkouzelnějších lokalit v Česku, tato nemovitost je připravena na vaši další kapitolu. Pro více informací a sjednání prohlídky nás kontaktujte.
Základní údaje
Dopravní spojení
Autobus, Vlak, Silnice
Elektřina
230 V, 400 V
Kanalizace
Veřejná kanalizace
Zdroje vody
Veřejný vodovod
Konstrukce
Jiná
ID nemovitosti
424231
Datum vložení
před měsícem
Stav nemovitosti
Dobrý
Plocha pozemku
159 m²
Plocha užitná
200 m²
Plocha zastavěná
145 m²
Energetická náročnost
G - Mimořádně nehospodárná
