Prodej rodinného domu 80 m², Barikádní, Nehvizdy
6 499 000 Kč
G
Popis nemovitosti
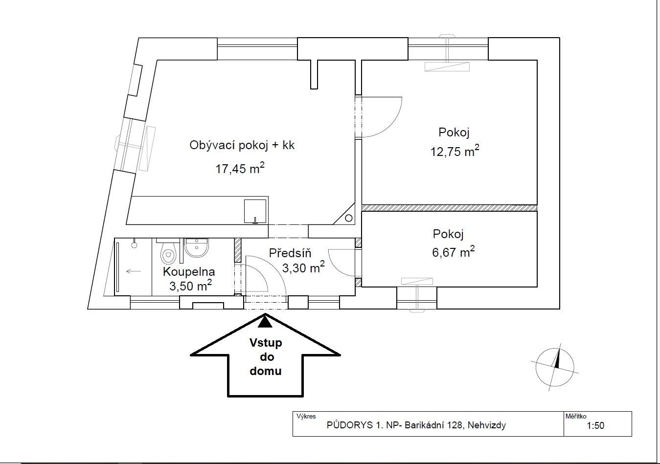
Dovolujeme si Vám představit mimořádně atraktivní investiční příležitost v oblíbené lokalitě Prahavýchod. Nabízený částečně zrekonstruovaný rodinný dům o dispozici 3+kk a podlahové ploše 43,67 m2 stojí na pozemku o velikosti 234 m2 a nabízí ideální kombinaci současného využití i budoucího rozšíření.
Nemovitost se nachází v ulici Barikádní, v malebném a dynamicky se rozvíjejícím městysu Nehvizdy, který je vyhledávaný jak pro skvělou dopravní dostupnost, tak pro kompletní občanskou vybavenost.
Dispozičně je dům řešen velmi prakticky: vstupní předsíň navazuje na koupelnu s WC, první ložnici a obývací pokoj s kuchyňským koutem, z něhož je vstup do druhé ložnice. Dům zároveň nabízí značný potenciál — je zde možnost rozšíření přízemí i vybudování dalších místností v podkroví.
Vytápění je řešeno plynovými WAV, dům je napojen na obecní vodovod i kanalizaci.
Součástí pozemku je podsklepený a velmi užitečný vedlejší objekt, vhodný například jako ateliér, dílna či kancelář. Zahrádka nabízí příjemné místo k odpočinku.
Nehvizdy jsou ceněny pro svou fantastickou dostupnost do Prahy — autem do 15 minut, případně přímým autobusovým spojením na metro Černý Most. Místo má rovněž výbornou infrastrukturu: restaurace, obchody, škola, školka, pošta, lékaři, sportoviště a veškeré další služby.
Pro více informací či sjednání prohlídky nás neváhejte kontaktovat. Rádi Vám nemovitost osobně představíme...
Základní údaje
Dopravní spojení
Vlak, Silnice, Dálnice
Elektřina
230 V
Kanalizace
Veřejná kanalizace
Zdroje vody
Veřejný vodovod
Konstrukce
Jiná
Balkóny
Terasa
Inženýrské sítě
Internet, Plyn
Parkování
Parkování na ulici, Vlastní parkovací stání
ID nemovitosti
970915
Datum vložení
před 3 dny
Vlastnictví
soukromé
Stav nemovitosti
Bezvadný
Plocha pozemku
234 m²
Plocha obytná
44 m²
Plocha užitná
80 m²
Plocha zastavěná
81 m²
Energetická náročnost
G - Mimořádně nehospodárná
