Prodej rodinného domu 192 m², Nová Ves nad Nisou
6 490 000 Kč
G
včetně poplatků, včetně provize, včetně právního servisu
Popis nemovitosti
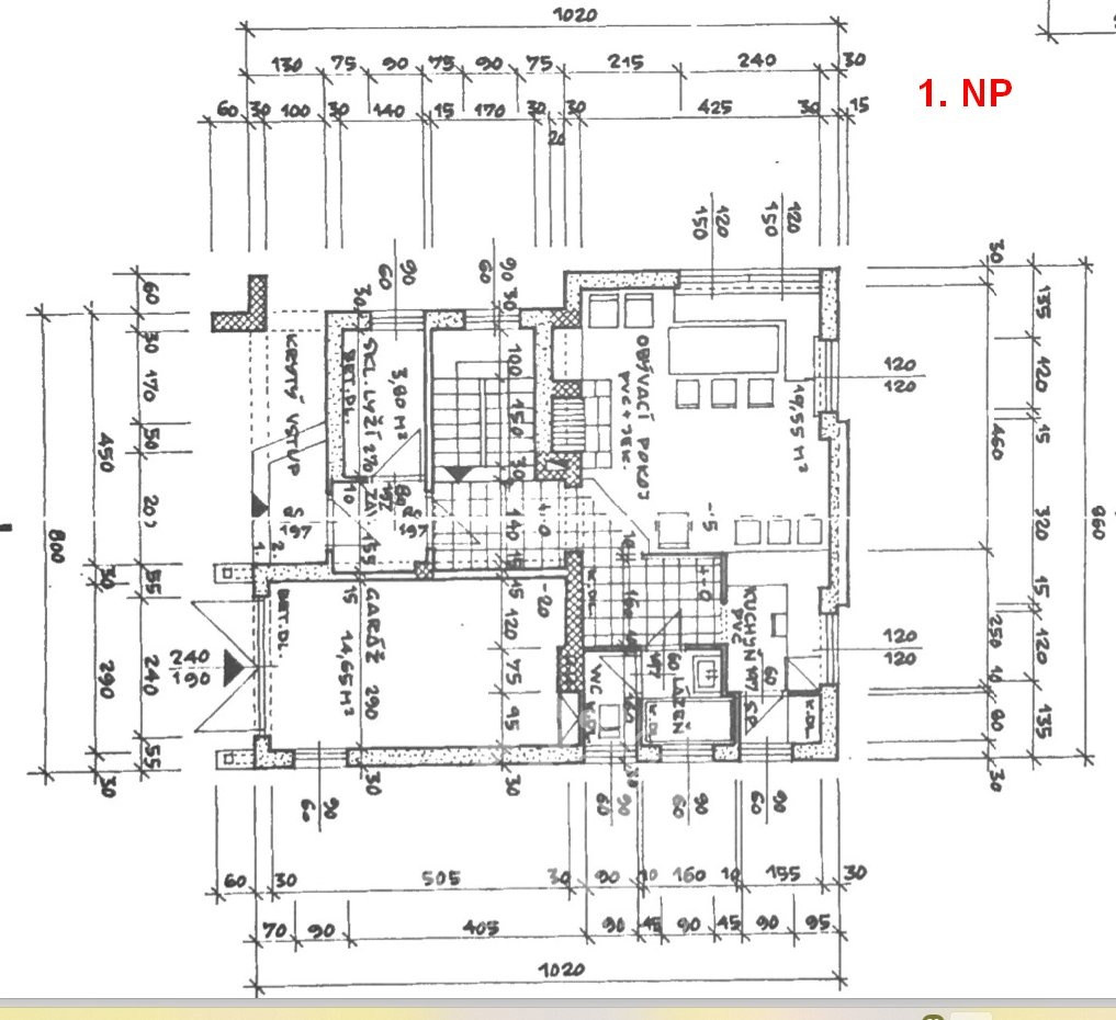
Ve výhradním zastoupení majitele prodáváme rodinný dům / chalupu na "samotě u lesa" s garáží na okraji obce Nová Ves nad Nisou. Dům byl postaven v roce 1992 a kolaudován v roce 2008, je smíšené konstrukce (kámen, beton, cihla). Střecha je z hliníkových plechů. Dům má dispozici 5+1, podlahová plocha je cca 192 m2. Okna jsou dřevěná s jednosklem dvojitá. Podlahy kombinované. Chalupa je vzdálena 13 min. (9 km) od Ski areálu Tanvaldský špičák.1. NP - obývací pokoj s krbovými kamny, kuchyň, koupelna, wc, chodba, šatna (lyžárna), komora, garáž,2. NP - 3 pokoje, šatna,1. PP - ložnice s krbem, technická místnost s bojlerem (možno zde mít např. hernu s ping-pongovým stolem), místnost na zahradní náčiní, další úložný prostor.Dům je opravdu zajímavý, doporučuji prohlídku.Energie: Elektřina 220 a 380 V, studna, jímka, elektrický bojler, přímotopy v místnostech, v 1. NP podlahové elektrické vytápění , 2x krb.Hypotéku zajistím.Brzy video z dronu!
Základní údaje
Elektřina
230 V, 400 V
Kanalizace
Žumpa, septik
Způsoby vytápění
Lokální - tuhá paliva, Lokální - elektrické
Parkování
Garáž
Příjezdy
Asfalt
ID nemovitosti
69458
Datum vložení
před 4 hodinami
Stav nemovitosti
Dobrý
Plocha pozemku
482 m²
Plocha užitná
192 m²
Plocha zastavěná
88 m²
Energetická náročnost
G - Mimořádně nehospodárná
