Prodej rodinného domu 80 m², Na lánech, Praha
16 499 000 Kč
G
cena včetně provoze a právního servisu.
Popis nemovitosti
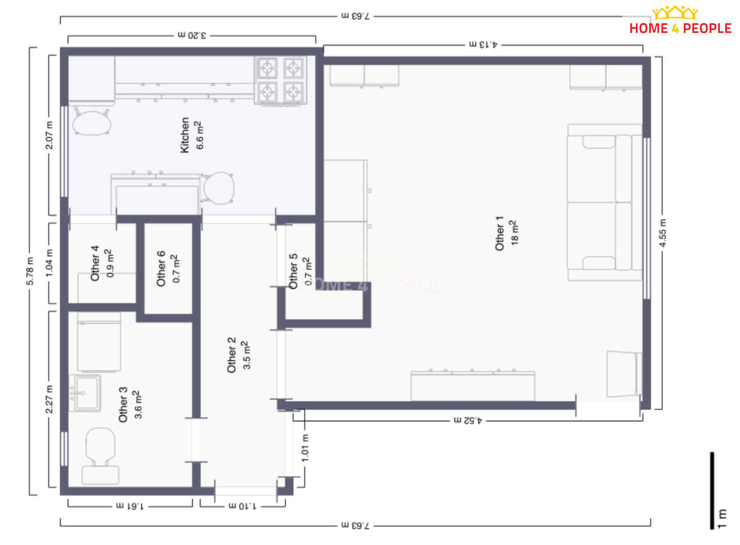
Nabízíme k prodeji rodinný dům v klidné a žádané lokalitě Praha 4 - Michle, v ulici Na Lánech. Dům stojí na pozemku o velikosti 478 m2 a nabízí dvě samostatné bytové jednotky, ideální jak pro vícegenerační bydlení, tak pro spojení bydlení s investicí.
Celková obytná plocha činí přibližně 80 m2. Dům je napojen na kanalizaci a vytápění zajišťuje nový plynový kotel. Komín je nově vyvložkovaný a má platnou revizi. Střecha prošla rekonstrukcí přibližně před 15 lety, okna jsou původní dřevěná. Součástí domu je suchý sklep o velikosti 40 m2, který nabízí dostatek úložného prostoru a je zde umístěn plynový kotel.
Vrchní bytová jednotka prošla kompletní rekonstrukcí před půl rokem - nové rozvody, koupelna, kuchyně i podlahy. V rámci rekonstrukce byly v patře vybudovány kompletně nové sádrokartonové stropy i zdi a nové obložení schodů do patra. Instalovány byly také nové radiátory.
?Spodní byt má rekonstruovanou koupelnu a nové podlahy v obývacím pokoji a chodbě (cca 3 roky zpět). Elektřina je v mědi.
Na pozemku i samotné stavbě je možné provést stavební úpravy a dům rozšířit o další bytovou jednotku a tři menší apartmány. Tato varianta nabízí zajímavý investiční potenciál - možnost rozšíření obytné plochy a zvýšení výnosu z pronájmu.
?Na zahradě se nachází vybetonovaný vestavěný gril, ideální pro letní posezení a odpočinek.
Michle je velmi oblíbená část Prahy díky výborné dopravní dostupnosti a kompletní občanské vybavenosti. Dům se nachází pouhých 5 minut chůze od luxusního centra Brumlovka, kde najdete restaurace, kavárny, obchody i sportovní zařízení. Autobusová zastávka je vzdálena přibližně 2 minuty chůze. V okolí jsou mateřské i základní školy, parky Jezerka a Tyršův vrch a množství zeleně pro volnočasové aktivity.
Tento dům představuje skvělou příležitost pro ty, kteří hledají klidné bydlení v Praze s možností dalšího rozšíření či investičního využití.
Pro více informací či sjednání prohlídky nás neváhejte kontaktovat. Ev. číslo: 31982. Bližší informace Vám sdělí František Zbahna, 720 980 333, zbahna@home4people.cz
Základní údaje
Elektřina
230 V
Kanalizace
Veřejná kanalizace
Zdroje vody
Veřejný vodovod
Způsoby vytápění
Ústřední - plynové
Konstrukce
Jiná
ID nemovitosti
31982
Datum vložení
před 22 dny
Vlastnictví
soukromé
Stav nemovitosti
Bezvadný
Plocha celková
478 m²
Plocha pozemku
478 m²
Plocha užitná
80 m²
Plocha zastavěná
80 m²
Energetická náročnost
G - Mimořádně nehospodárná
