Pronájem bytu 3+kk 83 m², Masarykova, Hluboká nad Vltavou
18 500 Kč za měsíc
C
Popis nemovitosti
V rámci exkluzivní spolupráce si vám dovoluji nabídnout k pronájmu bytovou jednotku o dispozici 3+kk v centru města Hluboká nad Vltavou v citlivě zrekonstruované budově bývalé restaurace a ubytovacího zařízení Bakalář.
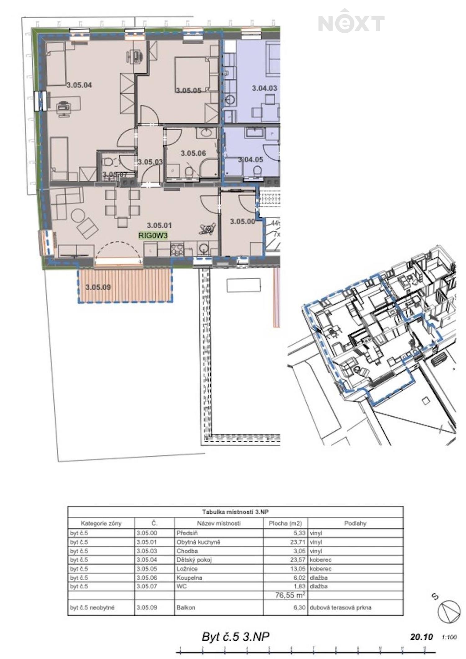
Bytová jednotka o celkové užitné ploše 86,21 m² s nejhezčím výhledem, se nachází ve 3.NP a sestává se z předsíně (5,33 m²), koupelny po pravé straně (6,02 m²) a chodby (3,05 m²) ze které se dostanete do ložnice (13,05 m²), prostorného pokoje (23,57 m²) a samostatného WC (1,83 m²). Do obývacího pokoje s kuchyňským koutem (23,71 m²) projdete rovnou z předsíně. K bytu náleží balkon (6,30 m²) jehož vchod je umístěn z kuchyně a také skladovací kóje v přízemí (3,36 m²).
Noví nájemníci si budou moci užívat čerstvě zrekonstruované prostory bytu a celé budovy. V kuchyni bude nerez dřez s odkapem, baterie s flexi ramenem a možností spršky, digestoř s odtahem do exteriéru, příprava na vestavnou lednici, dále sklokeramická varná deska, el. trouba, a myčka. Koupelna je vybavena sprchovým koutem, umyvadlem se skřínkou a zrcadlem. Byt bude vybaven svítidly, včetně LED lišty pro nepřímé osvětlení. U oken orientovaných na jih a západ budou nainstalovány el. ovládané venkovní žaluzie. Tento byt má navíc v rámci základního vybavení také klimatizaci.
Vytápění a ohřev vody je zajištěn tepelným čerpadlem (vzduch, voda).
Měsíční náklady spojené s užíváním prostoru činí: 18.500,- Kč nájem + energie, voda 5.300,- (závisí dle počtu osob v bytě), přičemž náklady na elektřinu budou sníženy díky vlastní fotovoltaické elektrárně. Internet 299,- Kč měsíčně bude přepsán na nového nájemníka (router není k dispozici). Provize RK činí jeden měsíční nájem plus DPH 21%, kauce je pronajímatelem stanovena na 37.000,- Kč. Zároveň zde nabízíme možnost pronájmu parkovacího stání / garáže či dvoj-garáže včetně dvou sklepů. Více informací vám ráda poskytnu po telefonu.
Aktuálně probíhají na nemovitosti finální stavební práce. K nastěhování bude jednotka připravena od 30.1.2026.
Pokud jste rádi v centru dění a oceníte nadstandardní občanskou vybavenost v této krásné lokalitě, je toto bydlení pro vás ideální volbou. Doporučuji prohlídku nemovitosti. Pro komunikaci uvádějte evidenční číslo zakázky N114656.
Základní údaje
ID nemovitosti
N114656
Datum vložení
včera
Vlastnictví
soukromé
Stav nemovitosti
Po rekonstrukci
Plocha užitná
83 m²
Patro
3.
Energetická náročnost
C - Úsporná
