Pronájem kanceláře 250 m², Na Brně, Hradec Králové
50 000 Kč za měsíc
G
+ měs. zálohové poplatky 15.000 Kč (voda, teplo, el.), Kauce. Provize RK.
Mgr. Jan Vodenka
Na spojce 85/3, Praha
Popis nemovitosti
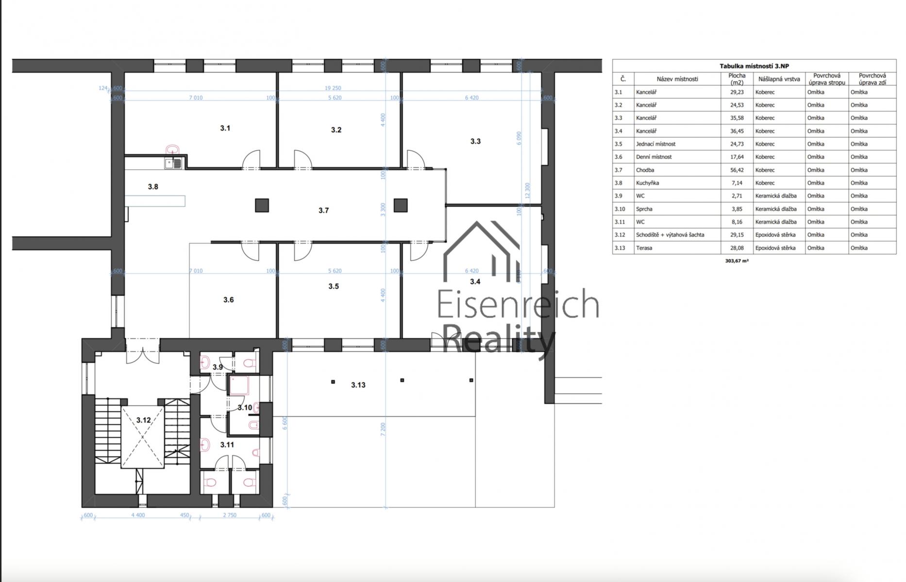
Nabízíme k pronájmu prostorné kancelářské prostory o celkové výměře 250 m2 ve 2. patře administrativní budovy.
Dispozice:
5 samostatných kanceláří vhodných pro menší i větší pracovní týmy
zařízená kuchyňka přímo v prostorách
toalety a sprcha k dispozici na chodbě
Další výhody:
v ceně nájemného jsou zahrnuta 2 parkovací stání
snadná dostupnost MHD i autem
reprezentativní prostředí vhodné pro sídlo firmy
Prostory jsou ihned k dispozici. V případě dotazů mě kontaktujte.
Základní údaje
Dopravní spojení
MHD
Inženýrské sítě
Internet
ID nemovitosti
1-34694
Datum vložení
před měsícem
Stav nemovitosti
Dobrý
Plocha užitná
250 m²
Patro
1.
Energetická náročnost
G - Mimořádně nehospodárná
Poloha na mapě
Mgr. Jan Vodenka
Na spojce 85/3, Praha
