Pronájem kanceláře 1 000 m², Křižíkova, Praha

18 EUR za m²/měsíc G
poplatky 170 CZK/m2/měsíc ~ Neplatíte provizi ~

Nemovitost nabízí

 Zdeněk Pýcha

Zdeněk Pýcha

PATOMA
Washingtonova 1567/25, Praha

Popis nemovitosti

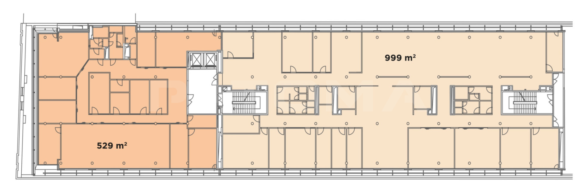
Nabízíme k pronájmu exkluzivní kancelářské prostory o celkové výměře 1000 m², které se nachází ve 3. NP budovy v žádané oblasti Karlína na ulici Křižíkova. Jedná se o openspace, který lze upravit dle potřeb budoucího nájemce. Budova poskytuje vynikající infrastrukturu a služby pro nájemníky, včetně recepce, 24/7 ostrahy a možnost využití parkovacích míst. Kanceláře jsou plně klimatizované. Lokalita nabízí výbornou dopravní dostupnost – v blízkosti je stanice metra, zastávky tramvají, což zajišťuje snadné spojení po celé Praze. Kancelářské prostory jsou vybaveny samostatnými sociálními zařízeními, přístupem k internetu přes optiku a možností dispozičních změn podle potřeb nového nájemníka. Budova má také bezbariérový přístup a moderní technologické zázemí, včetně elektrického K dispozici od 1/2026 s minimální dobou nájmu 3 roky. Pro více informací a domluvení osobní prohlídky mě neváhejte kontaktovat. Mé služby jsou pro Vás bezplatné. ~ Neplatíte provizi ~

Základní údaje

Dopravní spojení
Vlak, MHD, Silnice
Elektřina
230 V, 400 V
Zdroje vody
Veřejný vodovod
Způsoby vytápění
Lokální - plynové
Inženýrské sítě
Internet
Parkování
Parkování na ulici, Vlastní parkovací stání
ID nemovitosti
N78113
Datum vložení
před 12 hodinami
Stav nemovitosti
Dobrý
Plocha celková
1 000 m²
Plocha užitná
1 000 m²
Energetická náročnost
G - Mimořádně nehospodárná

Poloha na mapě

Nemovitost nabízí

 Zdeněk Pýcha

Zdeněk Pýcha

PATOMA
Washingtonova 1567/25, Praha