Pronájem kanceláře 150 m², Na Pankráci, Praha
16 EUR za m²/měsíc
C
+ servisní poplatky 210 Kč/m² + DPH. ~ Neplatíte provizi ~
Popis nemovitosti
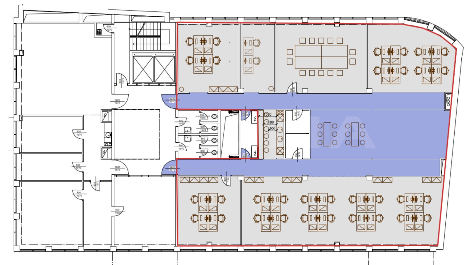
Nabízíme Vám k pronájmu kancelářské prostory o celkové výměře 150 m², které se nachází ve 3. NP administrativní budovy Vyšehrad Garden v lokalitě Praha 4 - Vyšehrad. Kancelářské prostory jsou s hotovým fit-outem včetně nábytku. Stačí se pouze nastěhovat.
Objekt je orientován na Pankrácké náměstí v blízkosti Kongresového centra, v pěší vzdálenosti na stanici metra C Vyšehrad a přímo naproti sjezdu/nájezdu na ulici 5. května.
Poloha objektu zajišťuje rychlou a pohodlnou dopravu MHD i autem jak do centra města, tak i směrem na D1.
Technické specifikace kanceláří:
- Flexibilní prostory s možností openspace nebo jednotlivých kanceláří
- 24/7 recepce s ostrahou
- sdílené zasedací a jednací místnosti
- topení a chlazení pomocí fancoilů
- otevíratelná okna
- zdvojená podlaha
- snížené podhledy
- elektronický požární systém a CCTV
- přístup na magnetické karty
Pro nájemníky možnost pronájmu parkovacího stání v budově. Příjemným bonusem je společná vnitřní zahrada s možností posezení.
Fotografie jsou ilustrační, pořízené v jiném patře.
K dispozici ihned.
Možnost dalších výměr v budově.
Pro více informací mě neváhejte kontaktovat, rád Vám zařídím osobní prohlídku.
V této lokalitě Vám můžeme nabídnout další zajímavé prostory. Více nabídek z našeho portfolia naleznete na našich webových stránkách.
Mé služby jsou pro Vás bezplatné.
~ Neplatíte provizi ~
Základní údaje
Dopravní spojení
MHD, Silnice, Dálnice
Konstrukce
Skeletová
Inženýrské sítě
Telefon, Internet
Parkování
Parkování na ulici, Vlastní parkovací stání
ID nemovitosti
N78151
Datum vložení
před 8 hodinami
Stav nemovitosti
Bezvadný
Plocha celková
150 m²
Plocha užitná
150 m²
Energetická náročnost
C - Úsporná
