Pronájem kanceláře 165 m², Polygrafická, Praha
Cena na dotaz
C
Popis nemovitosti
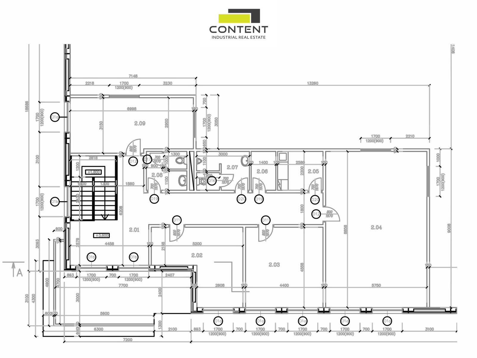
Pronájem kancelářských prostor Praha 10 - Malešice.
V zastoupení majitele a bez provize nabízíme kancelářské prostory o velikosti 164,8 m², umístěné v rámci komerční budovy s jednoduchým napojením na Pražský okruh D0.
- k dispozici ihned
- kanceláře 109,5 m²
- sociální zázemí a ostatní 55,3 m²
- klimatizace, vytápění
- plně vybavená kuchyňka
- přístup do budovy 24/7
- parkování k dispozici v areálu
Cena nájmu na dotaz.
Pro více informací nás kontaktujte, rádi Vám zajistíme prohlídku nemovitosti.
Základní údaje
Konstrukce
Skeletová
Parkování
Parkování na ulici, Vlastní parkovací stání
ID nemovitosti
N2023
Datum vložení
17. září 2024
Stav nemovitosti
Bezvadný
Plocha celková
165 m²
Plocha užitná
165 m²
Energetická náročnost
C - Úsporná
