Pronájem kanceláře 60 m², K Podlesí, Příbram
210 Kč za m²/měsíc
G
+ DPH plátci, + 300 Kč/ osoba spol. poplakty, + 2.000 Kč záloha topení, ele.
Popis nemovitosti
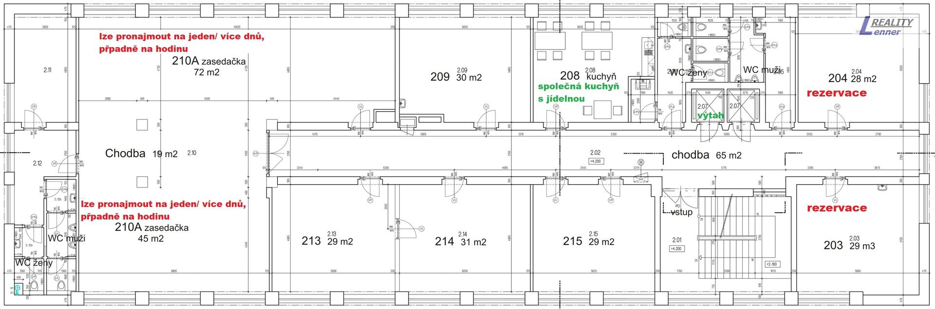
Nabízíme pronájem moderních a nově zrekonstruovaných kanceláří celkem o výměře 60 m² v administrativní budově areálu P.P.P., firmy CVP Galvanika s.r.o., v průmyslové zóně na okraji Příbrami.
Budova po kompletní rekonstrukci nabízí:
• nový výtah
• společné kuchyně a jídelny na patrech
• oddělené moderní toalety
• možnost parkování před areálem pro uživatele kanceláří
• za příplatek využití zasedacích místností 45 m² a 72 m² (den/ hodiny)
Aktuálně volné kanceláře:
1. patro: 29 m², 30 m², průchozí 29 + 30 m²
3. patro: 14,5 m², 28 m², 2× 29 m², 31 m²
4. a 5. patro: před rekonstrukcí, úpravy možné dle přání nájemce (dlouhodobý nájem)
Další výhody:
• čisté, nové a moderní prostory na klidném a hezkém místě na okraji Příbrami
• internet v ceně nájmu (vyšší rychlost za příplatek)
• centrální vytápění a nízké provozní náklady
• snadná dostupnost po veřejné komunikaci, výborná dostupnost do Prahy
• hlídaný areál (vlastní vrátnice, non stop provoz)
• v budoucnu v přízemí recepce u vchodu
Podmínky nájmu:
• volné ihned / dle dohody
• hradí se: první nájem vč. záloh, vratná kauce (dle dohody) a provize RK ve výši jedno nájmu
• PENB se připravuje, prozatím třída G
• majitel si vyhrazuje právo výběru nájemce
Základní údaje
Dopravní spojení
Autobus, Vlak, MHD, Silnice, Dálnice
Elektřina
230 V, 400 V
Kanalizace
Veřejná kanalizace
Zdroje vody
Veřejný vodovod
Způsoby vytápění
Ústřední - plynové
Inženýrské sítě
Telefon, Internet, Plyn
Vytápění podrobnosti
Plyn
ID nemovitosti
N04060
Datum vložení
předevčírem
Vlastnictví
soukromé
Stav nemovitosti
Po rekonstrukci
Plocha celková
60 m²
Plocha užitná
60 m²
Energetická náročnost
G - Mimořádně nehospodárná
