Pronájem obchodu 26 m², Palackého třída, Brno

1 500 Kč za m²/rok G

Nemovitost nabízí

Jana Hradilová

Realitní společnost města Brna a.s.
Panská 361/13, Brno

Popis nemovitosti

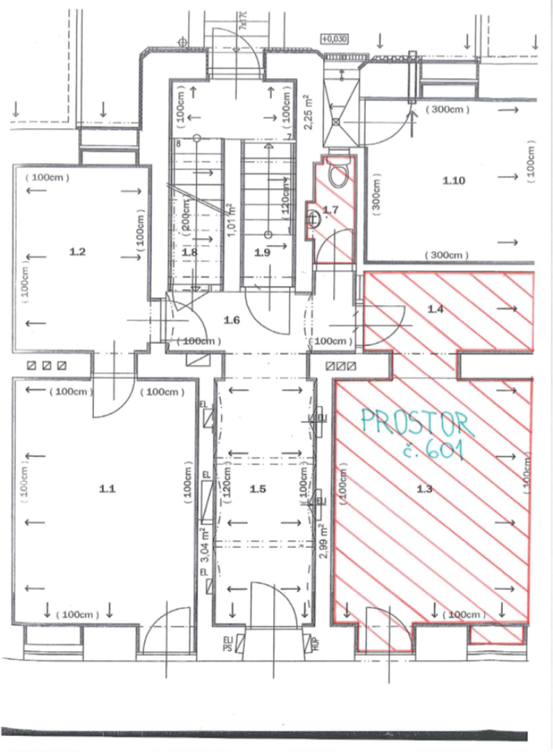
Statutární město Brno, městská část Brno – Královo Pole nabízí k pronájmu nebytový prostor č. 601, který se nachází v přízemí budovy č. p. 704, č. or. 13, na ulici Palackého třída v Brně, která je součástí pozemku p. č. 1806 – zastavěná plocha a nádvoří, o výměře 213 m², zapsaného v katastru nemovitostí Katastrálním úřadem pro Jihomoravský kraj, Katastrálním pracovištěm Brno-město, na LV č. 10001, pro obec Brno, katastrální území Královo Pole. Nebytový prostor má celkovou plochu 26 m² a sestává z prodejní místnosti o výměře 20,3 m² a zázemí o výměře 5,7 m², viz půdorys. Spolu s nebytovým prostorem č. 601 bude nájemce užívat společné WC o výměře 1,9 m² nacházející se v přízemí výše uvedené budovy, které je přístupné přes společné prostory budovy a je společné s nájemcem sousedního nebytového prostoru. V prostoru proběhne do 30.01.2026 výměna dveří včetně zárubní služebního vchodu umístěného ve společné chodbě domu za protipožární dveře. V nabízeném prostoru je k dispozici vestavěný mrazící box, který je možno odkoupit od předchozího nájemce za 39 000 Kč, v případě nezájmu bude vestavěný mrazící box odstraněn. Podmínky pro uzavření nájemní smlouvy: - využití prostor jako prodejna - smlouva na dobu neurčitou s 6měsíční výpovědní lhůtou -složení jistoty odpovídající 3násobku nájemného (jistota bude deponována na účtu pronajímatele po dobu trvání nájmu a bude pronajímatelem užita např. pro zápočet oproti splatné pohledávce na úhradu nájemného apod.) Minimální požadovaná výše nájemného: 1 500 Kč/m²/rok Kromě nájemného se hradí záloha na služby vodné a stočné 1 000 Kč/měsíčně. Dodávku elektřiny si nájemce sjedná přímo s dodavatelem. Způsob podání nabídky a požadované náležitosti: Nabídku je nutné podat v samostatně uzavřené obálce s označením „PALACKÉHO TŘÍDA 13 – prostor 601“ s uvedením výše nájemného, kterou je nájemce ochoten platit (uveďte v Kč/m²/rok), předpokládaného způsobu využití a uvedení zda zájemce požaduje vestavěný mrazící box odkoupit či odstranit. Nabídka dále musí obsahovat doklad o oprávnění k podnikání (živnostenský list, výpis z obchodního rejstříku ne starší 60 dnů) a čestné prohlášení o tom, že nájemce nemá vůči statutárnímu městu Brnu (SMB), příspěvkovým organizacím zřízeným SMB, ani vůči obchodním společnostem s majoritní majetkovou účastí SMB žádné splatné závazky. Adresa pro příjem žádostí: Úřad městské části Brno – Královo Pole, Palackého třída 59, 612 93 Brno. Termín pro podání žádosti: 03.12.2025 do 30.12.2025 do 12.00 hodin. Na později podané nabídky nebude brán zřetel a nebudou zařazeny k posouzení. Budoucí nájemce bude vybrán na základě posouzení jím předložen nabídky výše nájemného a záměru na využití předmětu nájmu. Termín prohlídky prostoru: 11.12.2025, 10:00 – 10:30 Bližší informace k nabízeným prostorám poskytne paní Lipovská (ÚMČ Brno – Královo Pole) tel. 541 588 410.

Základní údaje

Konstrukce
Zděná
ID nemovitosti
2154283886
Datum vložení
před hodinou
Vlastnictví
státní, obecní, jiné
Stav nemovitosti
Dobrý
Plocha užitná
26 m²
Energetická náročnost
G - Mimořádně nehospodárná

Poloha na mapě

Nemovitost nabízí

Jana Hradilová

Realitní společnost města Brna a.s.
Panská 361/13, Brno