Pronájem obchodu 60 m², Lázeňská, Janské Lázně

12 000 Kč za měsíc G
+ zálohy na energie + služby 4000,- Kč + elektřina

Nemovitost nabízí

Marcela Lukášková

HIPET reality
Bulharská 62, Trutnov

Popis nemovitosti

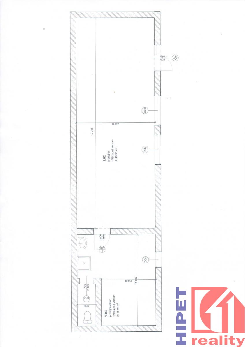
K pronájmu nabízíme obchodní prostor na hlavní ulici v Janských Lázních, s výbornou viditelností. Prostor v přízemí s přímým vstupem z chodníku ulice Lázeňské a dvěma velkými výlohami, celkové plochy 60 m2. Prodejna 43,93 m2, sklad se sociálním zázemím (WC, umývadlo, výlevka) 15,94 m2. Prostory jsou vhodné pro prodejnu, např. smíšené zboží, (možnost prodeje balených potravin). Další využití se nabízí pro služby péče o tělo, obchodní místo, dílna, skladování, apod. Při rekonstrukci byla instalována nová elektřina, kamerový systém, osvětlení. Vytápění je zajištěno teplovodem, radiátory s podružnými měřiči, pro ohřev teplé vody slouží ohřívač. Všechny energie mají vlastní měření. V případě potřeby je možné v suterénu domu užívat sklep ke skladování. Nájemné 12 000,- Kč/měs. + zálohy na služby a energie 4 000,- Kč/měs. (záloha na teplo 3 700,- Kč/měs., studenou vodu 300,- Kč/měs.). Spotřebu elektřiny, internet, pojištění provozovny a odpady si nájemce bude hradit na vlastní náklady. Kauce ve výši 24 000,- Kč, provize realitní kanceláři 1 x nájemné. Klasifikační třída energetické náročnosti budovy: G.

Základní údaje

Dopravní spojení
Autobus, Silnice
Elektřina
230 V
Kanalizace
Veřejná kanalizace
ID nemovitosti
511-1179
Datum vložení
před 9 hodinami
Stav nemovitosti
Po rekonstrukci
Plocha užitná
60 m²
Energetická náročnost
G - Mimořádně nehospodárná

Poloha na mapě

Nemovitost nabízí

Marcela Lukášková

HIPET reality
Bulharská 62, Trutnov