Pronájem obchodu 128 m², Zborovská, Praha
35 000 Kč za měsíc
G
Popis nemovitosti
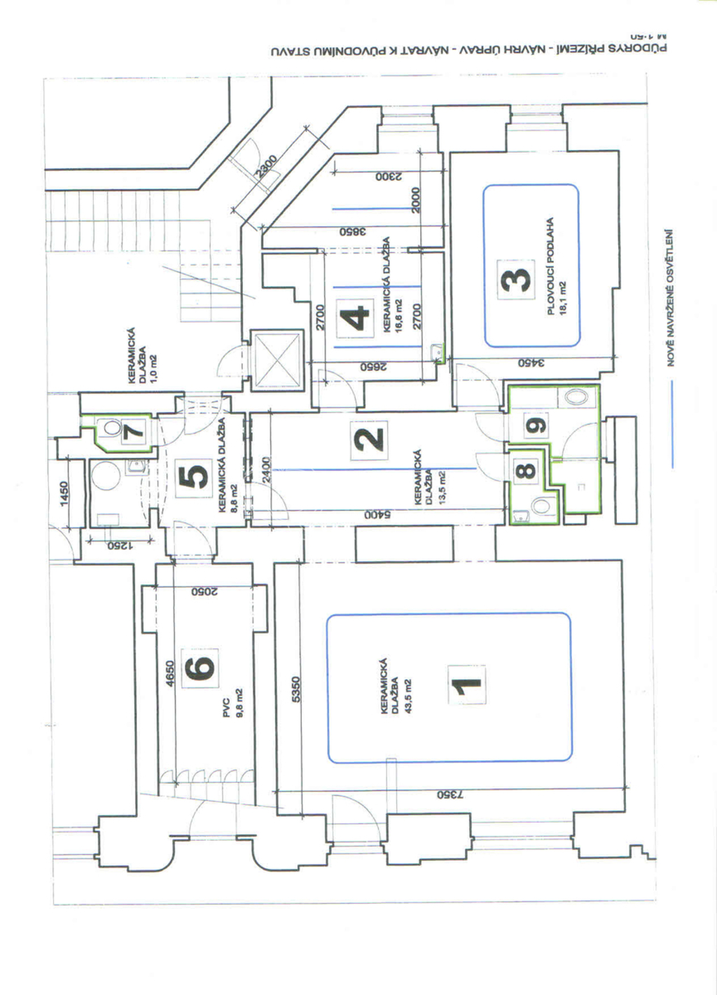
Zprostředkuji Vám pronájem obchodního prostoru, s výměrou 128 m2, na pražském Smíchově, v secesním domě ve Zborovské ulici. Tyto bezbariérové obchodní prostory se nachází přímo u náměstí 14. října. Hlavní místnost (50m²) má prostornou výlohu do ulice Zborovská. Nad výlohou je umístěn světelný reklamní banner. Rozsáhlé zázemí tvoří dvě místnosti, koupelna se sprchovým koutem, dvě toalety, místnost skladová a technická (pro přesnou představu plánek v galerii fotek). Vytápění je zajištěno etážovým kotlem, ohřev vody bojlerem. V prostorách zaveden 3-fázový proud, jistič 3x32A. Použité podlahové krytiny: zátěžové koberce a dlažba.
Měsíční náklady: nájemné + služby 1.400 Kč + přepis elektrické energie a plynu na nájemce. Parkování v místě na placených zónách či v OC Nový Smíchov. Dobrá dopravní dostupnost - Metro linky B (Anděl) 5 minut chůze, tramvajová stanice Zborovská minuta chůze. Jistota ve výši 70.000 Kč + odměna zprostředkovatele. Prostory jsou vhodné např. pro prodejnu, nábytkové studio, internetový obchod s e-shopem. Nelze na gastro, potraviny, večerku, kosmetické a kadeřnické služby, aktivity s hlučným provozem, apod.
Prohlídky jsou možné po dohodě, k nastěhování od 1.2.2026
Základní údaje
Kanalizace
Veřejná kanalizace
Konstrukce
Jiná
ID nemovitosti
18050
Datum vložení
před 2 hodinami
Stav nemovitosti
Bezvadný
Plocha pozemku
128 m²
Plocha užitná
128 m²
Plocha zastavěná
128 m²
Energetická náročnost
G - Mimořádně nehospodárná
