Pronájem obchodu 47 m², Radimova, Praha

25 000 Kč za měsíc G

Nemovitost nabízí

 Anita Bareš

Anita Bareš

BO! reality a finance
Husova 406, Třinec

Popis nemovitosti

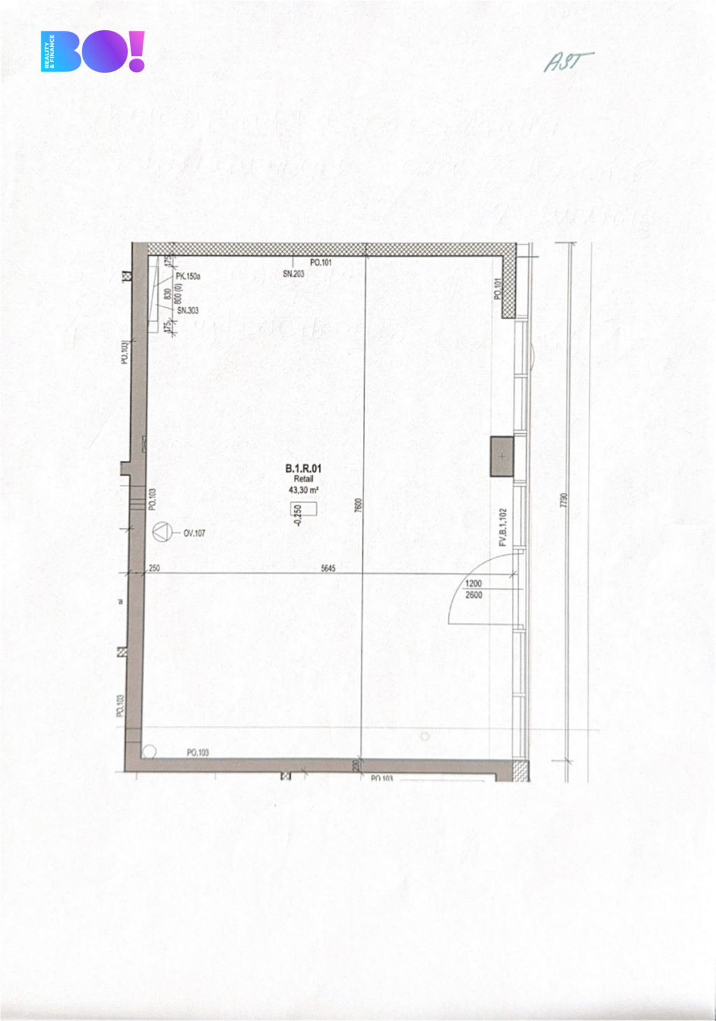
Nabízíme k pronájmu zcela nový komerční prostor o velikosti 43 m², nacházející se v 1. NP rezidence Radimova, Praha 6 – Břevnov. Součástí jednotky je také sklep o výměře 4 m². Komerční prostor je vhodný například pro kosmetický salon, kavárnu, kancelář či obchod. Prostor je ve stavu shell & core, což umožňuje budoucímu nájemci nebo vlastníkovi přizpůsobit dispozice a vybavení vlastním potřebám. K dispozici jsou veškeré inženýrské sítě: elektřina (230 V, jištění B16A), voda, kanalizace, internet (optika). Prostor je vybaven moderní vzduchotechnickou jednotkou s rekuperací. Výhodou je atraktivní lokalita s výbornou občanskou vybaveností – v okolí se nachází školy, školky, obchody, restaurace, zdravotnická zařízení i zastávky MHD (autobus, metro). V případě zájmu o prohlídku nás kontaktujte.

Základní údaje

Dopravní spojení
Autobus, MHD
Elektřina
230 V
Kanalizace
Veřejná kanalizace
Zdroje vody
Veřejný vodovod
Konstrukce
Jiná
Inženýrské sítě
Telefon, Internet
ID nemovitosti
7415
Datum vložení
před 7 dny
Stav nemovitosti
Novostavba
Plocha pozemku
43 m²
Plocha obytná
47 m²
Plocha užitná
47 m²
Energetická náročnost
G - Mimořádně nehospodárná

Poloha na mapě

Nemovitost nabízí

 Anita Bareš

Anita Bareš

BO! reality a finance
Husova 406, Třinec